Выполнили проект перепланировки квартиры по ул. Янковского д. 8 г. Минск
Сегодня: 0, за все время: 182
г. Минск
Фрунзенский
10
М-464-10-У1М
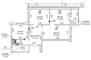
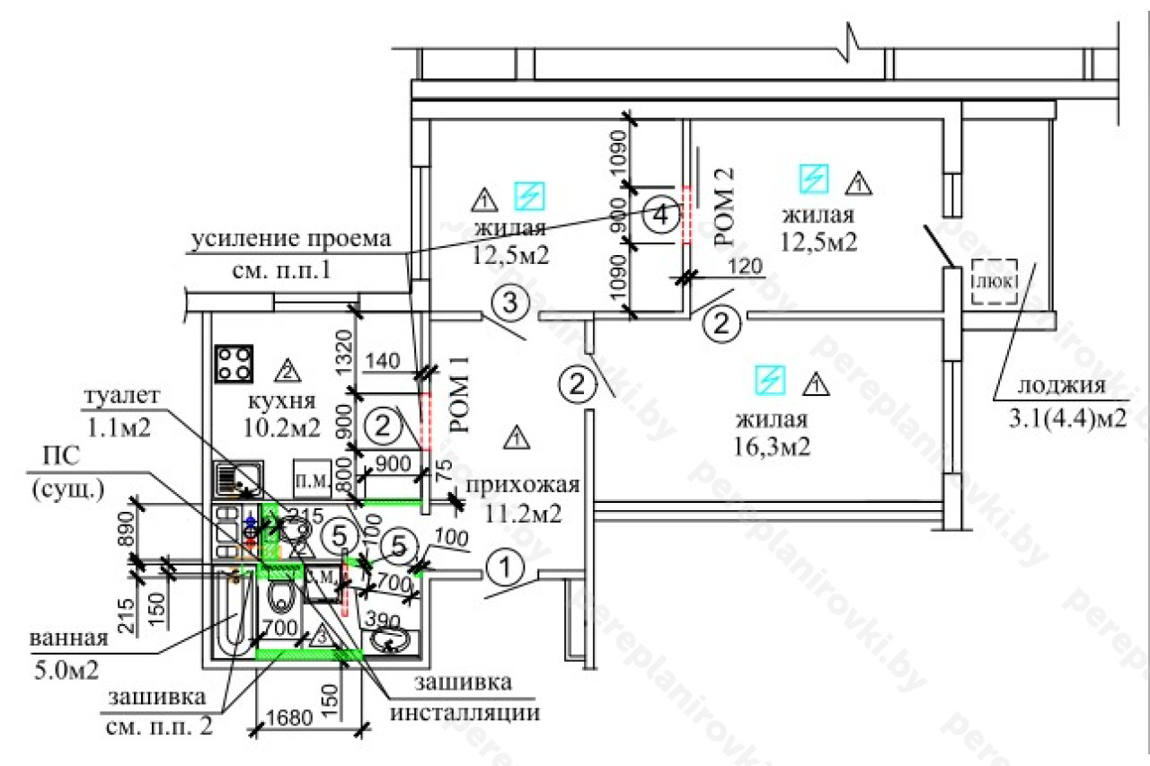
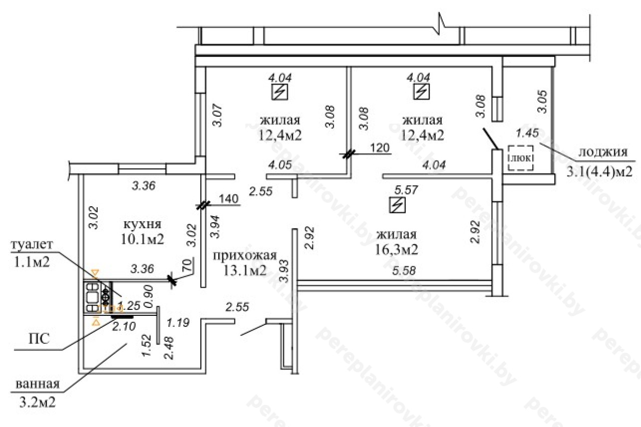
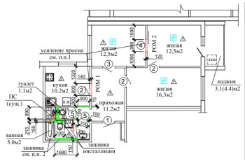
Выполнили проект перепланировки квартиры а также согласовали самовольную перепланировку по ул. Янковского д. 8 в Минске представляет собой следующие решения:
- Получили разрешение администрации Фрунзенского района на перепланировку.
- Выполнили строительный проект на перепланировку. Разделы: АС, КМ, ОПЗ, ТЗ. Проект предусматривал устройство 4-х проёмов в несущих стенах с усилением рамами опорными металлическими!!!
- Согласовали проект у Зам. Начальника Управления Архитектуры и строительства Администрации Фрунзенского района, Председателем ТС.
- Защитили проект в ГП «Госстройэкспертиза по г. Минску» без единого замечания и получили Положительное Заключение по проекту.
- Разработали строительный проект на перепланировку квартиры с устройством проёмов в несущих стенах с усилением.
- Согласовали выполненный проект с ТС + исполком. Успешно защитили стройпроект в ГП «Госстройэкспертиза по г. Минску».
- Выполнили стройработы, включая устройство проёмов в несущих стенах с предварительным подведением опорных рам усиления, также электрику, сантехнику, отделку.
- Ввели квартиру в эксплуатацию после перепланировки.
- Получили на имя собственника новые правоустанавливающие документы, включая новый технический паспорт + свидетельство о гос. регистрации.
Информация
Год постройки
2006
Серия
М-464-10-У1М
Тип дома
панельный
Планировка
улучшенный проект
Район
Фрунзенский район
Микрорайон
Сухарево
№ дома
8
Улица
ул. Янковского
Город
г. Минск
Координаты
53.914870, 27.525845
Похожие проекты
Выполнить аналогичное согласование перепланировки , а также технический надзор можем и Вам. Достаточно оставить заявку "Заказать звонок" либо позвонить нам по телефонам +375 (29) 311-86-94 и +375 (33) 311-86-94
Адекватные цены, сертифицированные и опытные специалисты помогут выбрать Вам оптимальное решение.






