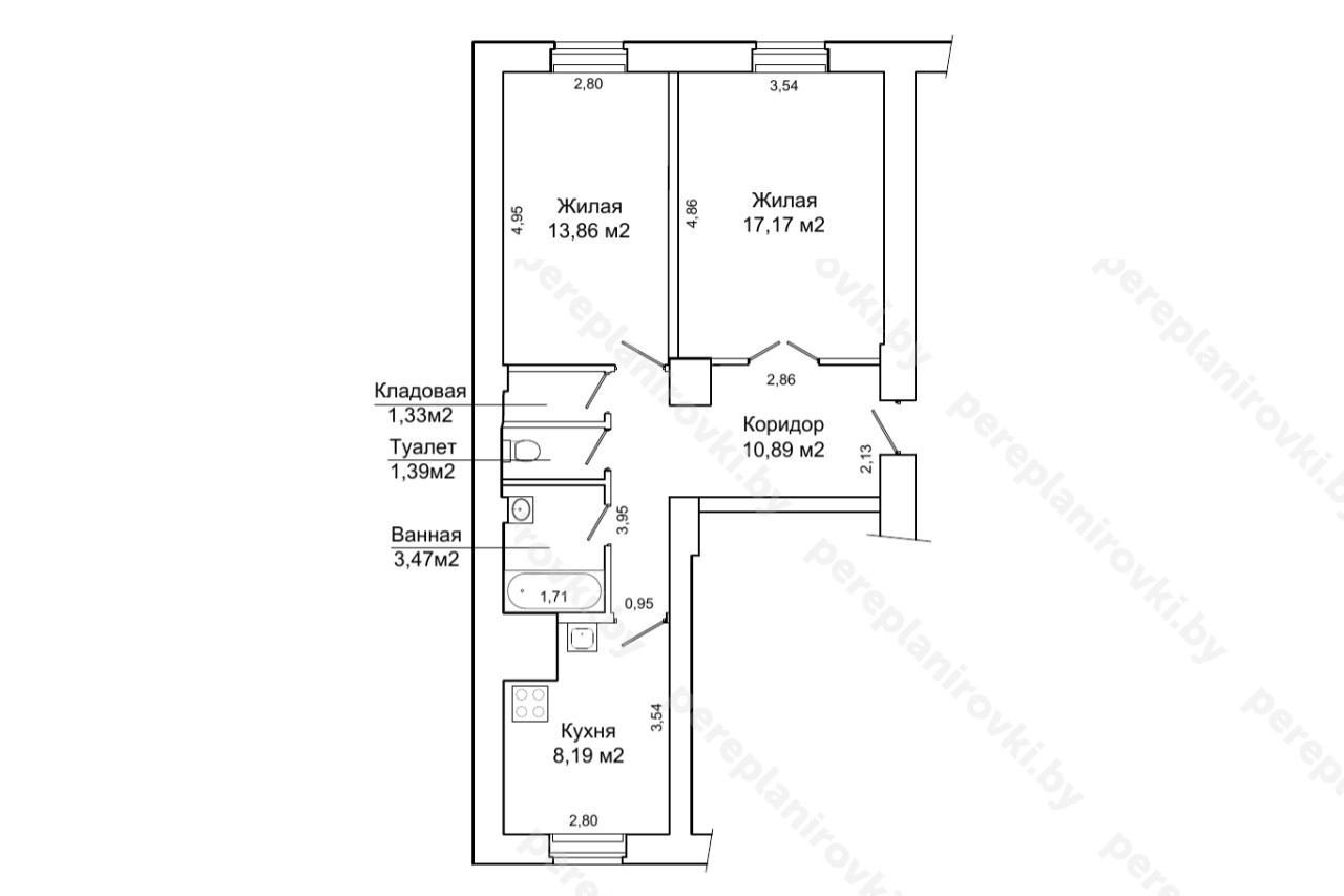
Выполнили перепланировку квартиры по ул. Бядули д. 8 г. Минск
Сегодня: 0, за все время: 80
г. Минск
Партизанский
5
индвидуальный
Площадь Победы
9 минут пешком
Выполнили перепланировку квартиры по улице Змитрока Бядули д. 8 представляет собой следующие решения:
- Получили Разрешение Администрации Заводского района г. Минска на перепланировку (переустройство).
- Разработали архитектурный проект перепланировки (Раздел АС -Архитектурно-строительные работы, ОВ - Отопление и Вентиляция воздуха).
- Согласовали Архитектурно-строительный проект с Зам. Начальника управления архитектуры и строительства Администрации Партизанского района г. Минска, а также Главным Инженером ЖЭУ Партизанского района г. Минска, с инженером УП "Мингаз".
- Выполнили гидроизоляцию пола вновь образованного санузла. (Предоставили СВидетельство о тех. компетенции МАиСт РБ).
- Выполнили строй работы по замене радиаторов отопления (Предоставили Аттестат Соответствия МАиСт РБ).
- Осуществили технический надзор, составили акты на скрытые работы. (Предоставили Аттестаты МАиСт РБ).
- Заказали обмерочную Ведомость БРТИ.
- Составили комиссию на ввод в эксплуатацию + согласовали акты ввода с комиссией.
- Получили Решение исполкома на регистрацию изменений после перепланировки в БРТИ.
- Зарегистрировали в БРТИ Решение исполкома, получили новые правоустанавливающие документы - новый технический паспорт + Свидетельство о гос. Регистрации.
Информация
Год постройки
1962
Серия
индвидуальный
Тип дома
кирпичный
Планировка
новостройка
Район
Партизанский район
Микрорайон
Захарова
Этажность
5
№ дома
8
Улица
ул. Навуковая
Город
г. Минск
Координаты
53.930300, 27.669853
Похожие проекты
Выполнить аналогичное согласование перепланировки , а также технический надзор можем и Вам. Достаточно оставить заявку "Заказать звонок" либо позвонить нам по телефонам +375 (29) 311-86-94 и +375 (33) 311-86-94
Адекватные цены, сертифицированные и опытные специалисты помогут выбрать Вам оптимальное решение.


