Выполнили проект перепланировки квартиры по ул. Восточная д. 24 г. Минск
Сегодня: 0, за все время: 139
г. Минск
Советский
5
Академия Наук
12 минут пешком
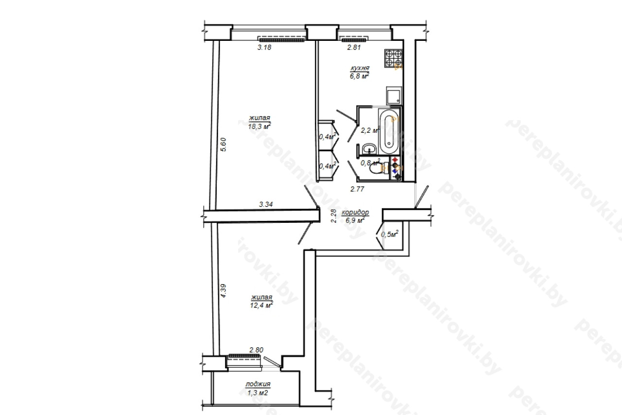
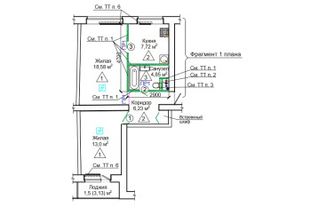
Выполнили проект перепланировки квартиры по улице Восточная д. 24 в Минске представляет собой следующие решения:
- Получили Разрешение Администрации Советского района г. Минска на перепланировку (переустройство).
- Разработали архитектурный проект перепланировки (Раздел АС -Архитектурно-строительные работы, ОВ - Отопление и Вентиляция воздуха).
- Согласовали Архитектурно-строительный проект с Зам. Начальника управления архитектуры и строительства Администрации Советского района г. Минска, а также Главным Инженером ЖЭУ, инженером УП "Мингаз".
- Выполнили строй работы по устройству гидроизоляции пола вновь образованного санузла. (предоставили Сертификаты)
- Осуществили технический надзор, составили акты на скрытые работы. (предоставили аттестаты тех. надзора ИП Шусталика Р.А.)
- Заказали обмерочную Ведомость в РУП "Минское городское агентство по государственной регистрации и земельному кадастру".
- Составили комиссию на ввод в эксплуатацию + согласовали акты ввода с комиссией.
- Получили Решение исполкома на регистрацию изменений после перепланировки в РУП "Минское городское агентство по государственной регистрации и земельному кадастру".
- Зарегистрировали в РУП "Минское городское агентство по государственной регистрации и земельному кадастру" Решение исполкома, получили новые правоустанавливающие документы - новый технический паспорт + Свидетельство о гос. Регистрации РУП "Минское городское агентство по государственной регистрации и земельному кадастру".
Информация
Год постройки
1971
Серия
МК-5
Тип дома
кирпичный
Планировка
брежневка
Район
Советский район
Микрорайон
Некрасова
Этажность
5
Метро
Академия Наук
№ дома
24
Улица
ул. Восточная
Город
г. Минск
Координаты
53.928816, 27.591565
Похожие проекты
Выполнить аналогичное согласование перепланировки , а также технический надзор можем и Вам. Достаточно оставить заявку "Заказать звонок" либо позвонить нам по телефонам +375 (29) 311-86-94 и +375 (33) 311-86-94
Адекватные цены, сертифицированные и опытные специалисты помогут выбрать Вам оптимальное решение.


