Выполнили перепланировку квартиры по пр-т. Независимости д. 174 г. Минск
Сегодня: 0, за все время: 74
г. Минск
Первомайский
9
М-464
Уручье
5 минут пешком
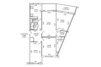
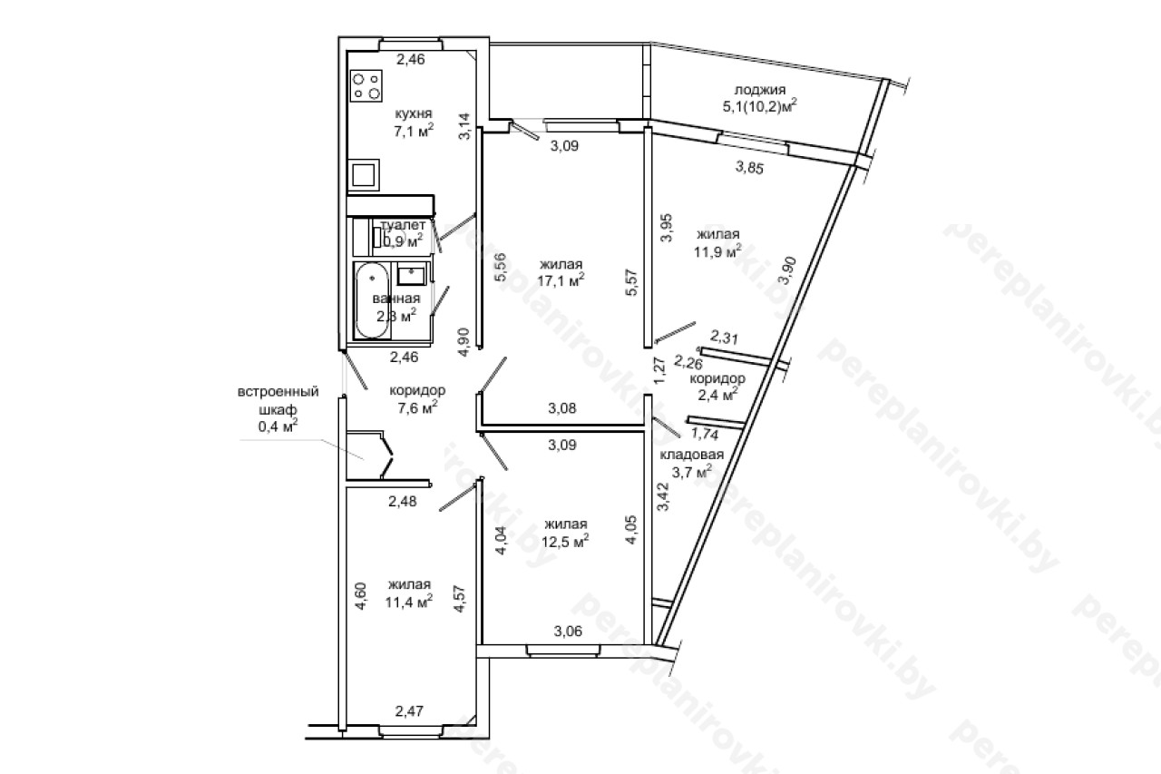
Выполнили перепланировку квартиры по проспекту Независимости д. 174 представляет собой следующие решения:
- Получили Разрешение на перепланировку (переустройство) в Администрации Первомайского района г. Минска.
- Выполнили строительный проект на перепланировку. Разделы: АС,КМ, ОПЗ, ОВ, ТЗ.
- Согласовали проект в исполкоме Первомайского района, Главным инженером ЖЭУ, УП "Мингаз".
- Защитили проект в ГП «Госстройэкспертиза по г. Минску» без единого замечания и получили Положительное Заключение по проекту.
- Выполнили стройработы:
- Устройство проёма шириной 1160 мм между жилой комнатой и кухней в несущей стене с усилением металлической рамой опорной РОМ1 под перекрытие.
- Осуществили Демонтаж сантех. кабины.
- Выполнили замену радиаторов отопления.
- Осуществили гидроизоляцию пола санузла с напуском на стены 300 мм.
- Осуществили технический надзор как ИП Шусталик Р.А. за производством работ. Составили акты на скрытые работы.
- Заказали обмерочную Ведомость в РУП «Минское городское агентство по государственной регистрации и земельному кадастру» . Согласовали данный документ в ЖЭУ.
- Составили акты на ввод в эксплуатацию. Согласовали акты с комиссией, куда входят все заинтересованные лица.
- Подали весь «пакет документов» в Службу Одно Окно для вынесения Решения исполкома Первомайского района «о регистрации актов ввода в РУП «Минское городское агентство по государственной регистрации и земельному кадастру».
- Зарегистрировали в БТИ Решение исполкома на ввод, заказали правоустанавливающие документы, включающие:
- - Новый технический паспорт;
- - Новое свидетельство о государственной регистрации БТИ.
Информация
Год постройки
1990
Серия
М-464
Тип дома
панельный
Планировка
новостройка
Район
Первомайский район
Микрорайон
Уручье
Этажность
9
№ дома
174
Улица
пр-т. Независимости
Город
г. Минск
Координаты
53.944288, 27.690272
Похожие проекты
Выполнить аналогичное согласование перепланировки , а также технический надзор можем и Вам. Достаточно оставить заявку "Заказать звонок" либо позвонить нам по телефонам +375 (29) 311-86-94 и +375 (33) 311-86-94
Адекватные цены, сертифицированные и опытные специалисты помогут выбрать Вам оптимальное решение.


