Выполнили проект перепланировки квартиры по ул. Притыцкого д. 158 г. Минск
Сегодня: 0, за все время: 120
г. Минск
Фрунзенский
22
индвидуальный
Каменная горка
6 минут пешком
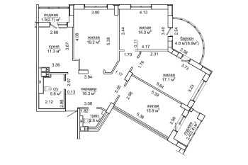
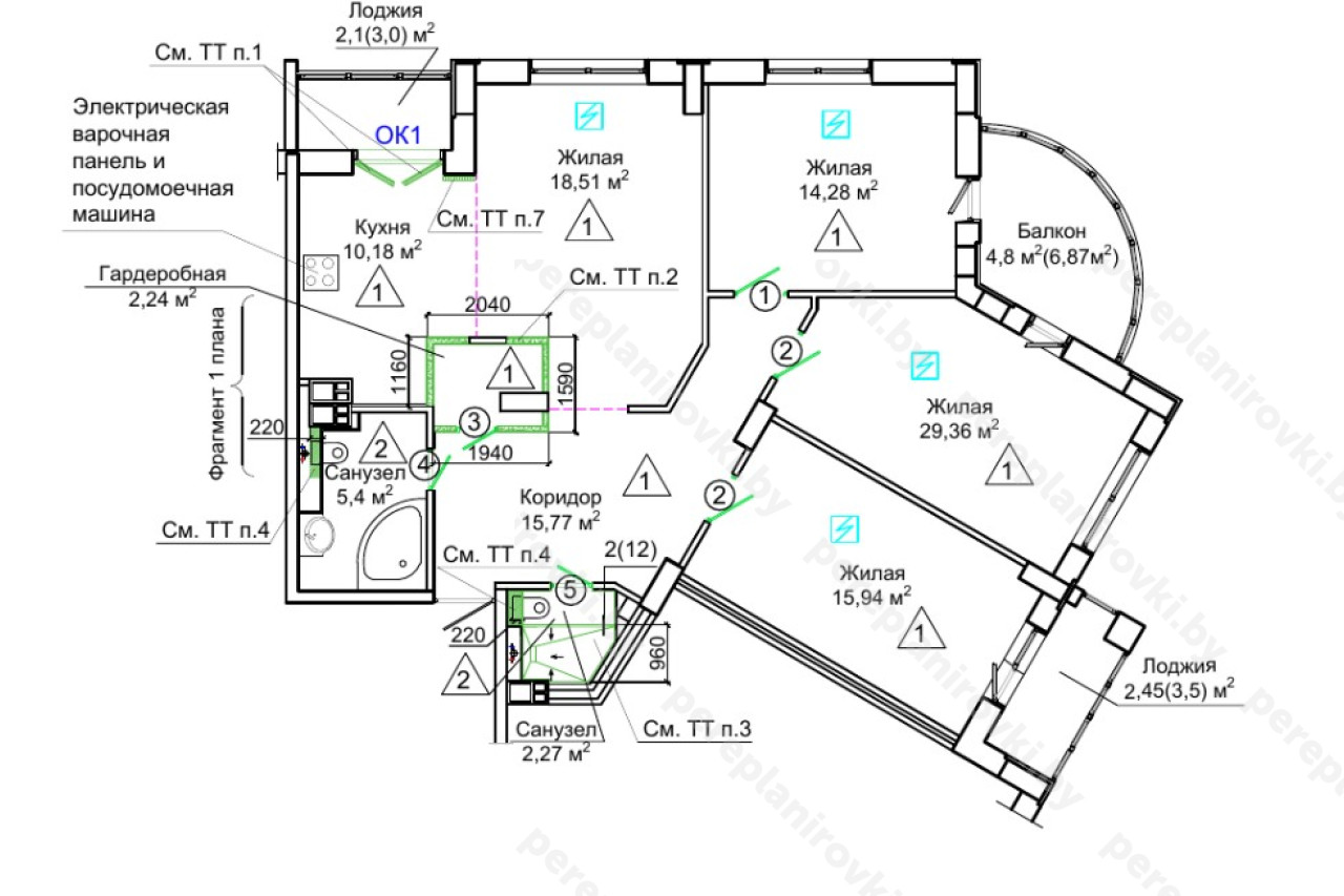
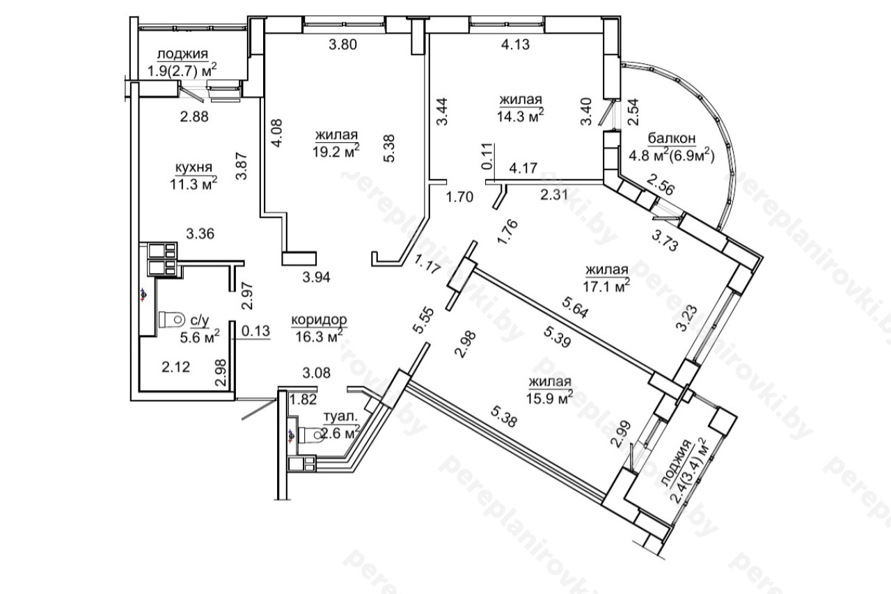
Выполнили перепланировку квартиры по улице Притыцкого д. 158 в Минске представляет собой следующие решения:
- Получили Разрешение Администрации Фрунзенского района г. Минска на перепланировку (переустройство).
- Разработали архитектурный проект перепланировки (Раздел АС -Архитектурно-строительные работы, ОВ - Отопление и Вентиляция воздуха).
- Согласовали Архитектурно-строительный проект с Зам. Начальника управления архитектуры и строительства Администрации Фрунзенского района г. Минска, а также Председателем ЖЭУ.
- Выполнили строй работы по устройству гидроизоляции пола вновь образованного санузла. (предоставили Сертификаты)
- Осуществили технический надзор, составили акты на скрытые работы. (предоставили аттестаты тех. надзора ИП Шусталика Р.А.)
- Заказали обмерочную Ведомость в РУП "Минское городское агентство по государственной регистрации и земельному кадастру".
- Составили комиссию на ввод в эксплуатацию + согласовали акты ввода с комиссией.
- Получили Решение исполкома на регистрацию изменений после перепланировки в РУП "Минское городское агентство по государственной регистрации и земельному кадастру".
- Зарегистрировали в РУП "Минское городское агентство по государственной регистрации и земельному кадастру" Решение исполкома, получили новые правоустанавливающие документы - новый технический паспорт + Свидетельство о гос. Регистрации РУП "Минское городское агентство по государственной регистрации и земельному кадастру".
Информация
Год постройки
2012
Серия
индвидуальный
Тип дома
монолитный
Планировка
свободная
Район
Фрунзенский район
Микрорайон
Каменная Горка
Этажность
22
Метро
Каменная горка
№ дома
158
Улица
ул. Притыцкого
Город
г. Минск
Координаты
53.908076, 27.428512
Похожие проекты
Выполнить аналогичное согласование перепланировки , а также технический надзор можем и Вам. Достаточно оставить заявку "Заказать звонок" либо позвонить нам по телефонам +375 (29) 311-86-94 и +375 (33) 311-86-94
Адекватные цены, сертифицированные и опытные специалисты помогут выбрать Вам оптимальное решение.


