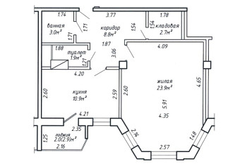
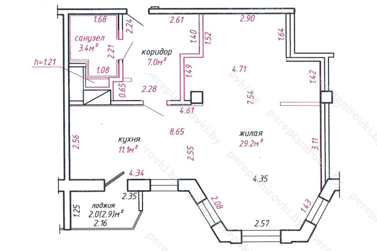
Выполнили проект перепланировки квартиры по ул. Грушевская д. 90 г. Минск
Сегодня: 0, за все время: 128
г. Минск
Московский
16
Грушевка
1 минут пешком
Выполнили проект перепланировки квартиры а также согласовали установку кондиционера по ул. Грушевская д. 90 в Минске представляет собой следующие решения:
- получили Разрешение Администрации Московского района г. Минска на перепланировку (переустройство).
- согласовали установку наружного блока кондиционера на фасаде здания.
- разработали архитектурный проект перепланировки (Раздел АС -Архитектурно-строительные работы).
- согласовали Архитектурно-строительный проект с Зам. Начальника управления архитектуры и строительства Администрации Московского района г. Минска Быстрой Ларисой Анатольевной, а также Председателем ТС.
- выполнили строительные работы по сантехнике, электрике, отделке.
- осуществили технический надзор, составили акты на скрытые работы.
- заказали обмерочную Ведомость БТИ.
- составили комиссию на ввод в эксплуатацию + согласовали акты ввода с комиссией.
- получили Решение исполкома на регистрацию изменений после перепланировки в БТИ.
- зарегистрировали в БТИ Решение исполкома, получили новые правоустанавливающие документы - новый технический паспорт + Свидетельство о гос. Регистрации.
Информация
Год постройки
2018
Серия
М-464
Проект
М-464-М-16-101
Тип дома
панельный
Район
Московский район
Микрорайон
Дзержинского
Этажность
16
Метро
Грушевка
№ дома
90
Улица
ул. Грушевская
Город
г. Минск
Координаты
53.883362, 27.516709
Похожие проекты
Выполнить аналогичное согласование перепланировки , а также технический надзор можем и Вам. Достаточно оставить заявку "Заказать звонок" либо позвонить нам по телефонам +375 (29) 311-86-94 и +375 (33) 311-86-94
Адекватные цены, сертифицированные и опытные специалисты помогут выбрать Вам оптимальное решение.
Тип выполненных работ
- Отделочные работы
- Сантехнические работы
- Раздел АС
- Электромонтажные работы
Частые вопросы


