Выполнили проект перепланировки квартиры по ул. Кедышко д. 14А г. Минск
Сегодня: 0, за все время: 152
г. Минск
Первомайский
5
1-434С-8
Московская
5 минут пешком
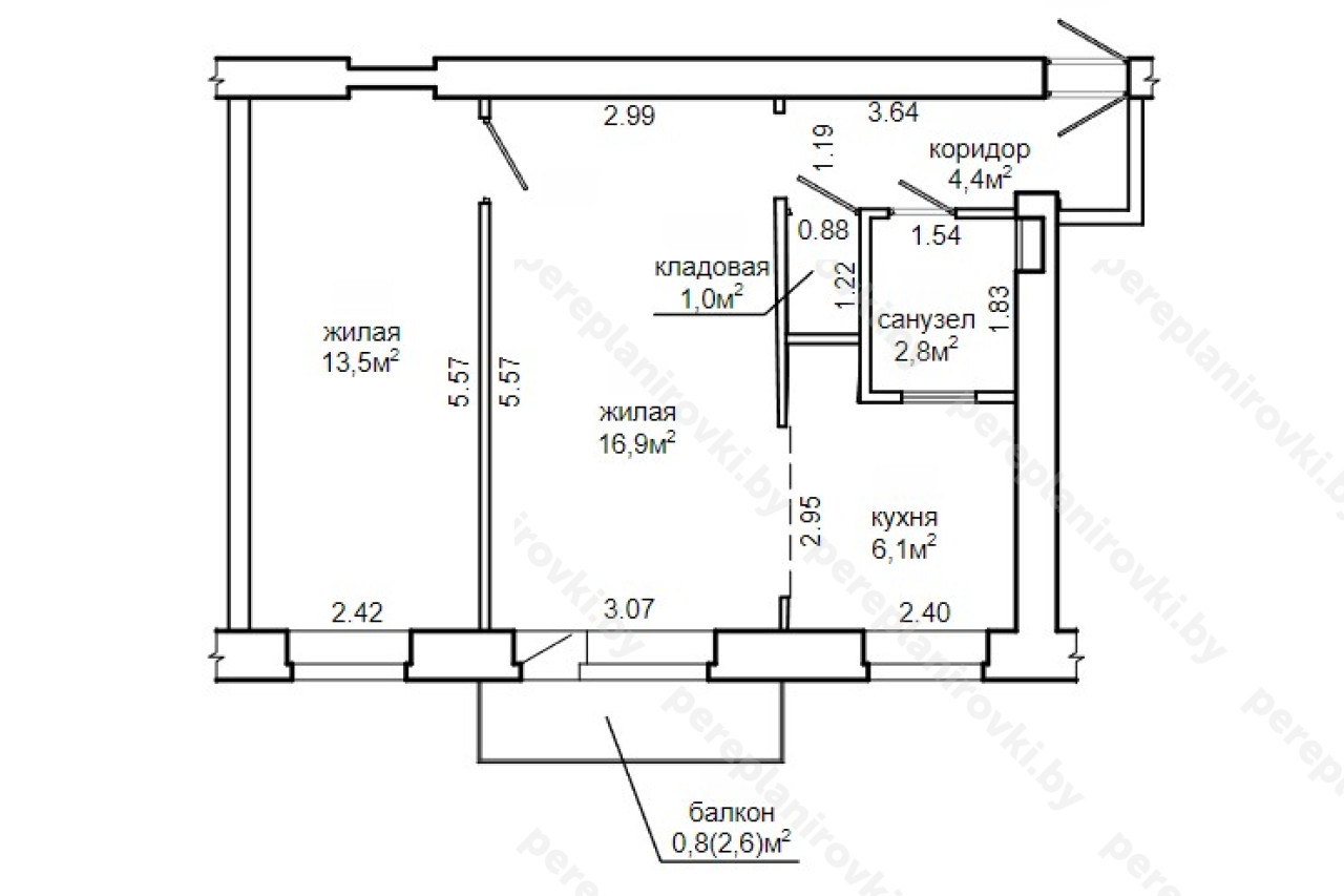
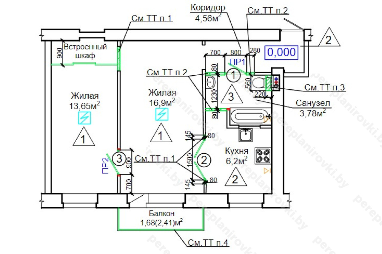
Выполненная перепланировка квартиры по улице Кедышко д. 14А представляет собой следующие решения:
- Получили Разрешение Администрации Первомайского района г. Минска на перепланировку (переустройство).
- Разработали архитектурный проект перепланировки (Раздел АС -Архитектурно-строительные работы).
- Согласовали Архитектурно-строительный проект с Начальником управления архитектуры и строительства Администрации Первомайского района г. Минска, а также Главным Инженером ЖЭУ.
- Выполнили работы по гидроизоляции пола вновь образованного санузла.
- Осуществили технический надзор, составили акты на скрытые работы.
- Заказали обмерочную Ведомость БТИ.
- Составили комиссию на ввод в эксплуатацию + согласовали акты ввода с комиссией.
- Получили Решение исполкома на регистрацию изменений после перепланировки в БТИ.
- Зарегистрировали в БТИ Решение исполкома, получили новые правоустанавливающие документы - новый технический паспорт + Свидетельство о гос. Регистрации.
Информация
Год постройки
1963
Серия
1-434С
Проект
1-434С-8
Тип дома
блок-комнаты
Планировка
хрущевка
Район
Первомайский район
Микрорайон
Волгоградская
Этажность
5
Метро
Московская
№ дома
14А
Улица
ул. Кедышко
Город
г. Минск
Координаты
53.929972, 27.620940
Похожие проекты
Выполнить аналогичное согласование перепланировки , а также технический надзор можем и Вам. Достаточно оставить заявку "Заказать звонок" либо позвонить нам по телефонам +375 (29) 311-86-94 и +375 (33) 311-86-94
Адекватные цены, сертифицированные и опытные специалисты помогут выбрать Вам оптимальное решение.


