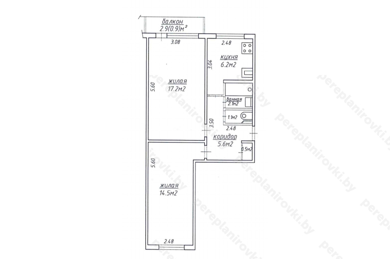
Выполнили перепланировку квартиры по ул. Уборевича д. 152 к.2 г. Минск
Сегодня: 0, за все время: 148
г. Минск
Заводской
5
1-464А
Выполнили перепланировку квартиры по улице Уборевича д. 152 к.2 представляет собой следующие решения:
- Получили Разрешение Администрации Заводского района г. Минска на перепланировку (переустройство).
- Разработали архитектурный проект перепланировки (Раздел АС -Архитектурно-строительные работы).
- Согласовали Архитектурно-строительный проект с Зам. Начальника управления архитектуры и строительства Администрации Заводского района г. Минска, а также Главным Инженером ЖЭУ, УП "Мингаз".
- Выполнили гидроизоляцию пола вновь образованных туалете и ванной. (Предоставили Сертификат).
- Осуществили технический надзор от ИП Шусталик Р.А., составили акты на скрытые работы. (Предоставили Аттестат соответствия МАиСт РБ).
- Заказали обмерочную Ведомость БРТИ.
- Составили комиссию на ввод в эксплуатацию + согласовали акты ввода с комиссией.
- Получили Решение исполкома на регистрацию изменений после перепланировки в БРТИ.
- Зарегистрировали в БРТИ Решение исполкома, получили новые правоустанавливающие документы - новый технический паспорт + Свидетельство о гос. Регистрации.
Информация
Год постройки
1971
Серия
1-464А
Тип дома
панельный
Планировка
хрущевка
Район
Заводской район
Микрорайон
Чижовка
Этажность
5
№ дома
152/2
Улица
ул. Уборевича
Город
г. Минск
Координаты
53.835260, 27.619844
Похожие проекты
Выполнить аналогичное усиление проёма в несущей стене , а также объединение квартиры можем и Вам. Достаточно оставить заявку "Заказать звонок" либо позвонить нам по телефонам +375 (29) 311-86-94 и +375 (33) 311-86-94
Адекватные цены, сертифицированные и опытные специалисты помогут выбрать Вам оптимальное решение.


