Выполнили проект перепланировки квартиры по ул. Одинцова д. 22 к. 1 г. Минск
Сегодня: 0, за все время: 107
г. Минск
Фрунзенский
9
М-464
Каменная горка
9 минут пешком
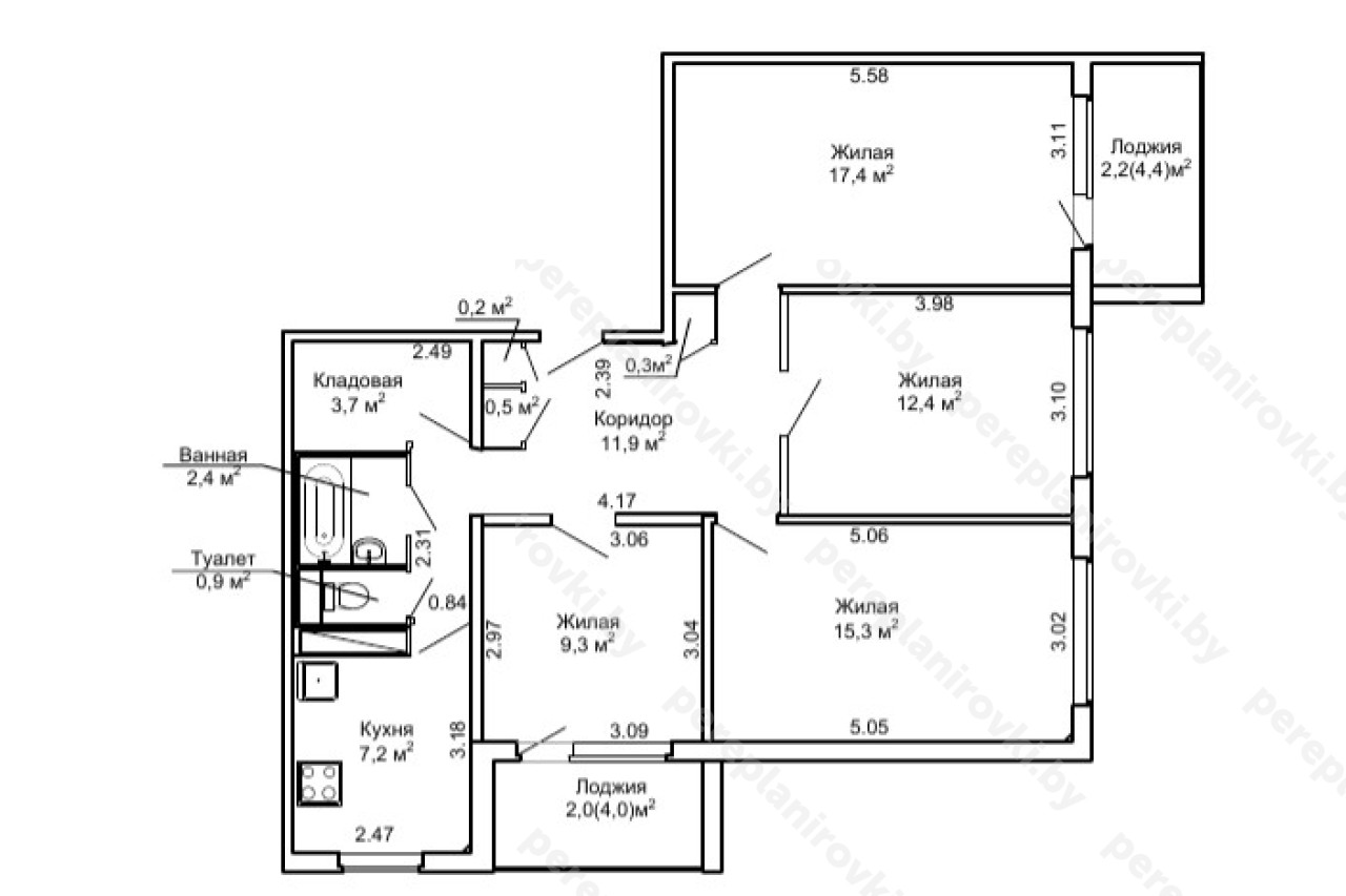
Выполнили перепланировку квартиры по улице Одинцова д. 22 к. 1 в Минске представляет собой следующие решения:
- Получили Решение исполкома Фрунзенского района г. Минска на перепланировку (переустройство) квартиры.
- Разработали проект перепланировки, включая разделы: АС, КМ, ТЗ, ОПЗ.
- Согласовали проект в Управлении архитектуры и строительства Администрации Фрунзенского района г. Минска, ЖЭУ.
- Выполнили строй работы по устройству проёма шириной 960 мм. между кухней и жилой комнатой с усилением Рамой опорной металлической РОМ 1 (комбинированная рама: ригель швеллеры накладные, а стойки уголки, что не громоздко).
- Выполнили строй работы по гидроизоляции пола вновь образованного санузла (имеем Сертификат качества).
- Осуществили технический надзор за производством работ, составили акты на скрытые работы.
- Заказали Обмерочную Ведомость БТИ, согласовали её с ЖЭУ.
- Созвали комиссию на ввод квартиры в эксплуатацию после перепланировки + составили и согласовали с комиссией акты на ввод в эксплуатацию.
- Получили Решение исполкома Фрунзенского района г. Минска на регистрацию актов ввода после перепланировки в БТИ.
- Зарегистрировали акты ввода + Решение исполкома в БТИ – получили новые правоустанавливающие документы
- Новый Технический паспорт.
- Новое свидетельство о государственной регистрации БТИ на имя собственника квартиры.
Информация
Год постройки
1982
Серия
М-464
Тип дома
панельный
Планировка
стандартный проект
Район
Фрунзенский район
Микрорайон
Запад
Этажность
9
Метро
Каменная горка
№ дома
22/1
Улица
ул. Одинцова
Город
г. Минск
Координаты
53.900719, 27.444439
Похожие проекты
Выполнить аналогичное согласование перепланировки , а также технический надзор можем и Вам. Достаточно оставить заявку "Заказать звонок" либо позвонить нам по телефонам +375 (29) 311-86-94 и +375 (33) 311-86-94
Адекватные цены, сертифицированные и опытные специалисты помогут выбрать Вам оптимальное решение.








