Выполнили проект перепланировки квартиры по ул. Шаранговича д. 48 г. Минск
Сегодня: 0, за все время: 142
г. Минск
Фрунзенский
9
М-464
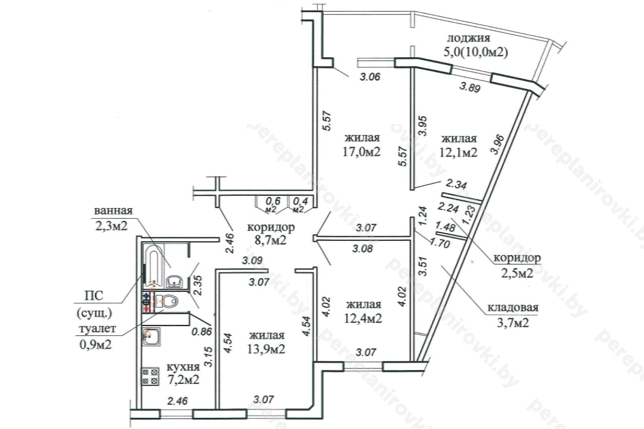
Выполнили проект перепланировки квартиры а также строительные работы по ул. Шаранговича д.48 в Минске представляет собой следующие решения:
- Получили Разрешение на перепланировку (переустройство) в Администрации Фрунзенского района г. Минска.
- Выполнили строительный проект на перепланировку. Разделы: АС,КМ, ОВ, ОПЗ, ТЗ.
- Согласовали проект в исполкоме Московского района, Главным инженером ЖЭУ.
- Защитили проект в ГП «Госстройэкспертиза по г. Минску» без единого замечания и получили Положительное Заключение по проекту.
- Выполнили стройработы:
- Устройство проёма между жилой и кухней в несущей стене с усилением металлической рамой опорной РОМ 1.
- Устройство проёма между жилой комнатой и коридором с усилением металлической рамой опорной РОМ 2.
- Устройство гидроизоляции пола во вновь образованном санузле.
- Осуществили технический надзор за производством работ. Составили акты на скрытые работы.
- Заказали обмерочную Ведомость БТИ. Согласовали данный документ в ЖЭУ.
- Составили акты на ввод в эксплуатацию. Согласовали акты с комиссией, куда входят все заинтересованные лица.
- Подали весь «пакет документов» в Службу Одно Окно для вынесения Решения исполкома Фрунзенского района «о регистрации актов ввода в БТИ…»
- Зарегистрировали в БТИ Решение исполкома на ввод, заказали правоустанавливающие документы, включающие :
- - Новый технический паспорт;
- - Новое свидетельство о государственной регистрации БТИ.
Информация
Год постройки
1992
Серия
М-464
Тип дома
панельный
Планировка
стандартный проект
Район
Фрунзенский район
Микрорайон
Сухарево
Этажность
9
№ дома
48
Улица
ул. Шаранговича
Город
г. Минск
Стиль
модернизм второй волны
Координаты
53.882799, 27.440981
Похожие проекты


