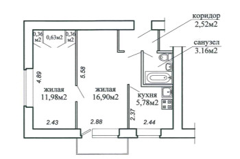
Выполнили проект перепланировки квартиры по ул. Красина д. 47 г. Минск
Сегодня: 0, за все время: 115
г. Минск
Заводской
5
1-434С
Выполнили проект перепланировки квартиры а также строительные работы по ул. Красина д.47 в Минске представляет собой следующие решения:
- Получили Разрешение Администрации Заводского района г. Минска на перепланировку (переустройство).
- Разработали архитектурный проект перепланировки (Раздел АС -Архитектурно-строительные работы).
- Согласовали Архитектурно-строительный проект с Зам. Начальника управления архитектуры и строительства Администрации Заводского района г. Минска, а также Главным Инженером ЖЭУ.
- Осуществили технический надзор, составили акты на скрытые работы.
- Заказали обмерочную Ведомость БТИ.
- Составили комиссию на ввод в эксплуатацию + согласовали акты ввода с комиссией.
- Получили Решение исполкома на регистрацию изменений после перепланировки в БТИ.
- Зарегистрировали в БТИ Решение исполкома, получили новые правоустанавливающие документы - новый технический паспорт + Свидетельство о гос. Регистрации.
Информация
Год постройки
1967
Серия
1-434С
Тип дома
кирпичный
Планировка
хрущевка
Район
Заводской район
Микрорайон
Сосны
Этажность
5
№ дома
47
Улица
ул. Красина
Город
г. Минск
Координаты
53.826402, 27.770833
Похожие проекты


