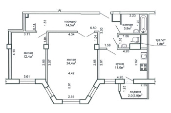
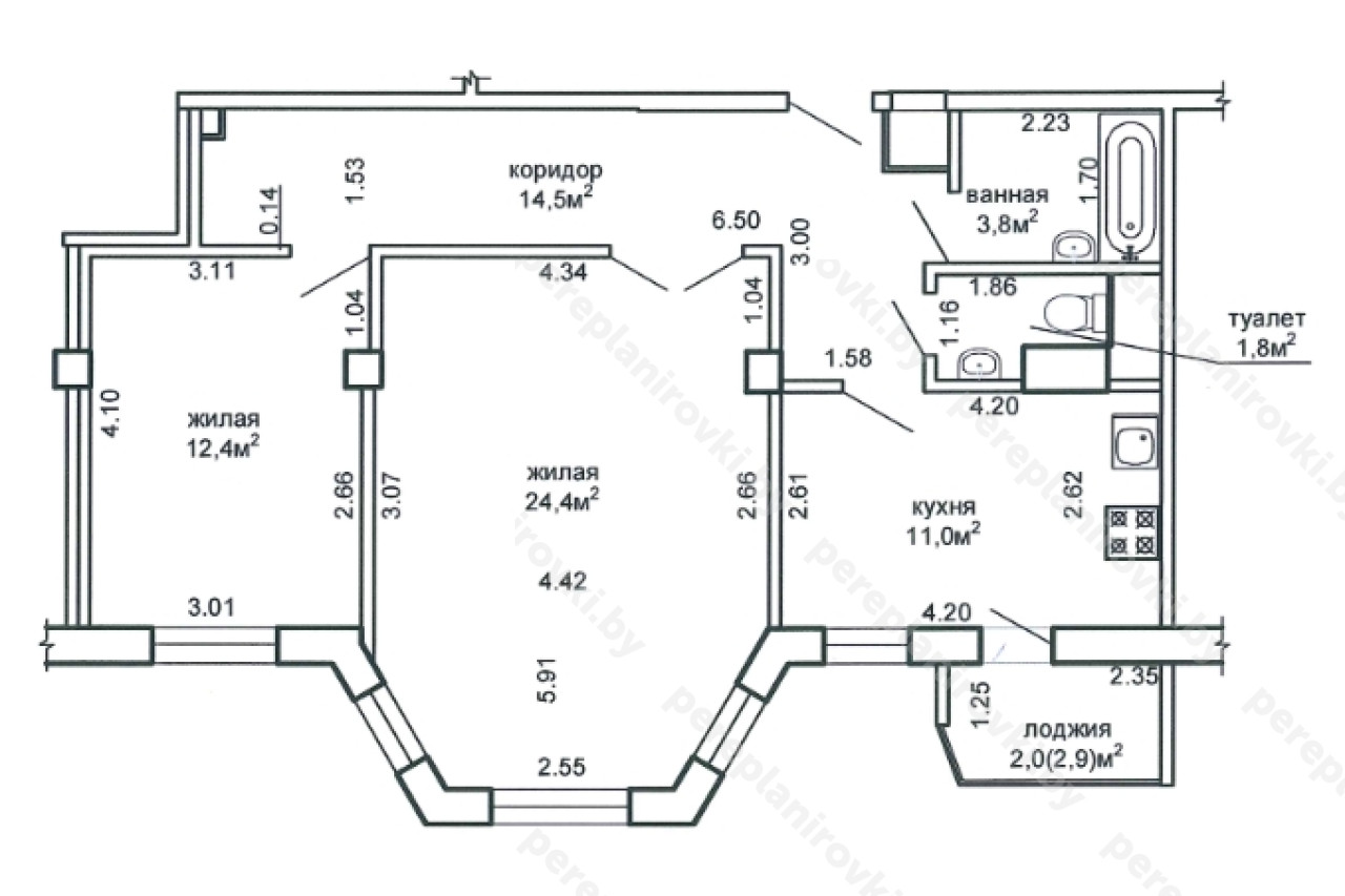
Выполнили проект перепланировки квартиры по ул. Горецкого д. 36 г. Минск
Сегодня: 0, за все время: 149
г. Минск
Фрунзенский
16
М-464-М
Выполнили проект перепланировки по улице Горецкого д. 36 в Минске представляет собой следующие решения:
- Получили Разрешение Администрации Фрунзенского района г. Минска на перепланировку (переустройство).
- Разработали архитектурный проект перепланировки (Раздел АС -Архитектурно-строительные работы).
- Согласовали Архитектурно-строительный проект с Зам. Начальника управления архитектуры и строительства Администрации Фрунзенского района г. Минска, а также Председателем ТС.
- Заказали обмерочную Ведомость БТИ.
- Составили комиссию на ввод в эксплуатацию + согласовали акты ввода с комиссией.
- Получили Решение исполкома на регистрацию изменений после перепланировки в БТИ.
- Зарегистрировали в БТИ Решение исполкома, получили новые правоустанавливающие документы - новый технический паспорт + Свидетельство о гос. Регистрации
Информация
Год постройки
2016
Серия
М-464-М
Проект
М-464-М-16-101
Тип дома
панельный
Планировка
улучшенный проект
Район
Фрунзенский район
Микрорайон
Сухарево
Этажность
16
№ дома
36
Улица
ул. Горецкого
Город
г. Минск
Координаты
53.888690, 27.444736
Похожие проекты
Выполнить аналогичное согласование перепланировки , а также технический надзор можем и Вам. Достаточно оставить заявку "Заказать звонок" либо позвонить нам по телефонам +375 (29) 311-86-94 и +375 (33) 311-86-94
Адекватные цены, сертифицированные и опытные специалисты помогут выбрать Вам оптимальное решение.


