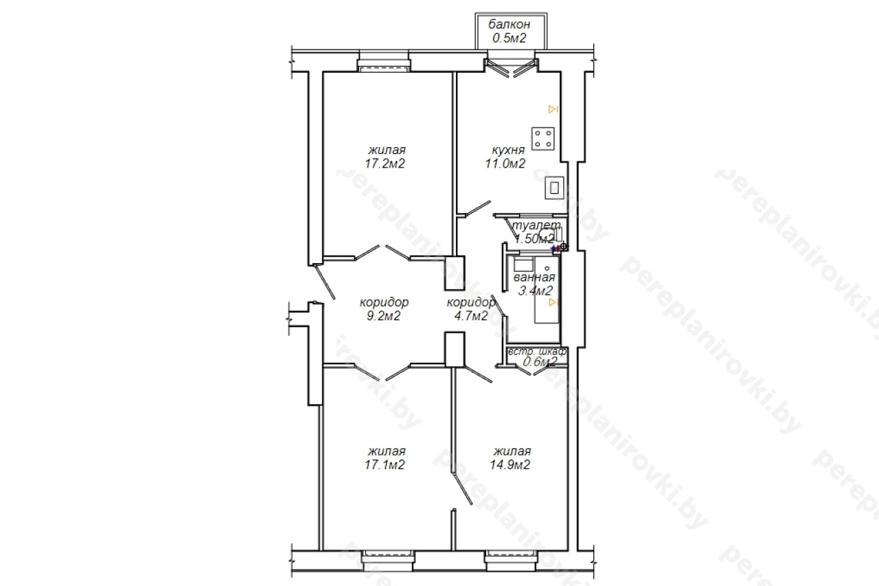
Выполнили проект перепланировки квартиры по ул. Якуба Коласа д. 55 к. 1 г. Минск
Сегодня: 0, за все время: 110
г. Минск
Советский
4
индвидуальный
Парк Челюскинцев
14 минут пешком
Выполнили проект перепланировки квартиры по улице Якуба Коласа д. 55 к. 1 в Минске представляет собой следующие решения:
- Получили Разрешение Администрации Советского района г. Минска на перепланировку (переустройство).
- Разработали архитектурный проект перепланировки (Раздел АС -Архитектурно-строительные работы).
- Согласовали Архитектурно-строительный проект с Зам. Начальника управления архитектуры и строительства Администрации Советского района г. Минска, а также Главным инженером ЖЭУ, УП "Мингаз".
- Выполнили стройработы по устройству гидроизоляции пола вновь образованного санузла.
- Осуществили технический надзор, составили акты на скрытые работы.
- Заказали обмерочную Ведомость БТИ.
- Составили комиссию на ввод в эксплуатацию + согласовали акты ввода с комиссией.
- Получили Решение исполкома на регистрацию изменений после перепланировки в БТИ.
- Зарегистрировали в БТИ Решение исполкома, получили новые правоустанавливающие документы - новый технический паспорт + Свидетельство о гос. Регистрации
Информация
Год постройки
1950
Серия
индвидуальный
Тип дома
кирпичный
Планировка
сталинка
Район
Советский район
Микрорайон
Беды
Этажность
4
Метро
Площадь Якуба Коласа
№ дома
55/1
Улица
ул. Якуба Коласа
Город
г. Минск
Координаты
53.932415, 27.600279
Похожие проекты
Выполнить аналогичное согласование перепланировки , а также технический надзор можем и Вам. Достаточно оставить заявку "Заказать звонок" либо позвонить нам по телефонам +375 (29) 311-86-94 и +375 (33) 311-86-94
Адекватные цены, сертифицированные и опытные специалисты помогут выбрать Вам оптимальное решение.


