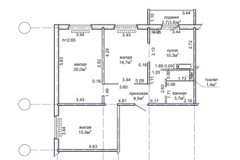
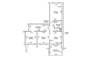
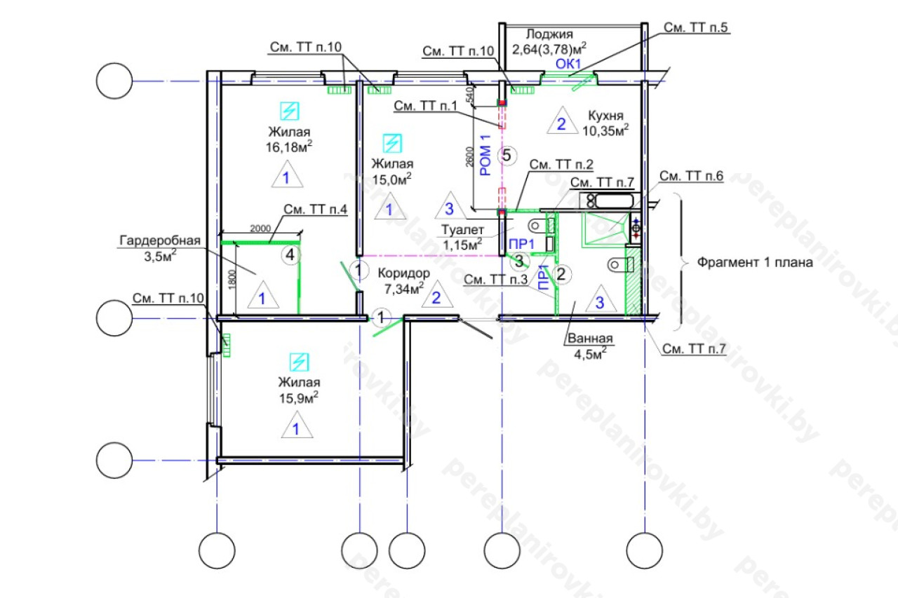
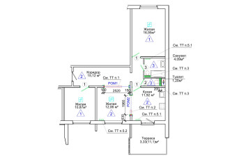
Выполнили перепланировку квартиры по ул. Пилотная д. 16 д. Копище
Сегодня: 0, за все время: 109
д. Копище
Минский
9
90
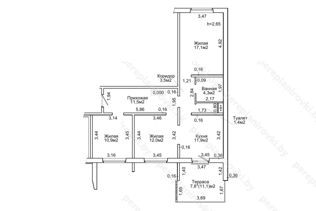
Выполнили перепланировку квартиры по улице Пилотная д. 16 в Минске представляет собой следующие решения:
- Получили Разрешение на перепланировку (переустройство) в Администрации Минского района.
- Выполнили строительный проект на перепланировку. Разделы: АС, КМ ,ОВ, ОПЗ, ТЗ.
- Согласовали проект в исполкоме Минского района, ТС «Центральный Парк-13"».
- Защитили проект в ГП «Госстройэкспертиза по Минской области» без единого замечания и получили Положительное Заключение по проекту.
- Выполнили строй работы:
- Устройство проёма между жилой и кухней в несущей стене с усилением металлической рамой опорной РОМ1. Устройство гидроизоляции пола во вновь образованном санузле.
- Заказали обмерочную Ведомость в МОАпоГРиЗК. Согласовали данный документ в ТС.
- Осуществили технический надзор за производством работ ОТ ИП Шусталик Р.А. Составили акты на скрытые работы.
- Составили акты на ввод в эксплуатацию. Согласовали акты с комиссией, куда входят все заинтересованные лица.
- Подали весь «пакет документов» в Службу Одно Окно для вынесения Решения исполкома Минского района «о регистрации актов ввода в МОАпоГРиЗК…»
- Зарегистрировали в МОАпоГРиЗК Решение исполкома на ввод, заказали новые правоустанавливающие документы, включающие
- - Новый технический паспорт;
- - Новое свидетельство о государственной регистрации МОАпоГРиЗК.
Информация
Год постройки
2024
Серия
90
Тип дома
панельный
Планировка
новостройка
Район
Минский район
Этажность
9
№ дома
16
Улица
ул. Пилотная
Город
д. Копище
Координаты
53.961233, 27.655543
Похожие проекты
Выполнить аналогичное согласование перепланировки , а также технический надзор можем и Вам. Достаточно оставить заявку "Заказать звонок" либо позвонить нам по телефонам +375 (29) 311-86-94 и +375 (33) 311-86-94
Адекватные цены, сертифицированные и опытные специалисты помогут выбрать Вам оптимальное решение.
Адрес: 223053, Минский р-н, д. Боровая, 7
Телефоны: +375 29 300 00 00
Сайт: www.a-100development.by
Почта: a-100@a-100.by















