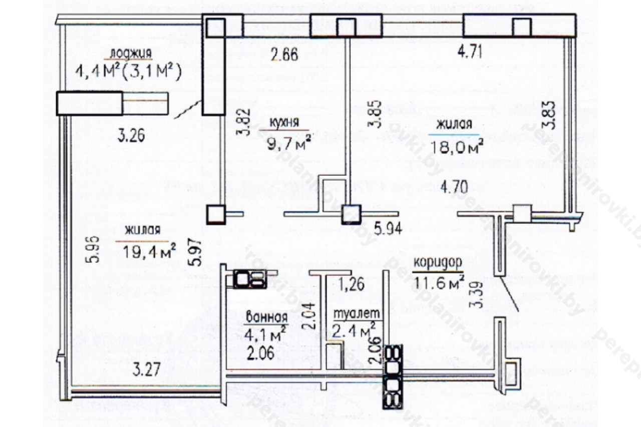
Выполнили проект перепланировки квартиры по ул. Стариновская д.2 г. Минск
Сегодня: 0, за все время: 129
г. Минск
Первомайский
12
монолитный
Уручье
6 минут пешком
Выполнили проект перепланировки квартиры по ул. Стариновская д.2 в Минске представляет собой следующие решения:
- Разработали строительный проект на перепланировку (переустройство) квартиры на основании решения исполкома.
- Согласовали строй проект в ЖЭУ, а также у Зам. Начальника отдела Архитектуры и строительства Администрации Первомайского района г. Минска.
- Выполнили строй работы по гидроизоляции пола вновь образованного санузла.
- Осуществили технический надзор на производством работ по гидроизоляции пола санузла. Составили акты на скрытые работы.
- Заказали Ведомость БТИ на обмер квартиры после перепланировки.
- Составили акты на ввод в эксплуатацию. Согласовали акты с комиссией, куда входят все заинтересованные лица.
- Подали весь «пакет документов» в Службу Одно Окно для вынесения Решения исполкома «О регистрации актов ввода в БТИ…»
- Зарегистрировали в БТИ Решение исполкома на ввод, заказали новые правоустанавливающие документы, включающие :
- - Новый технический паспорт;
- - Новое свидетельство о государственной регистрации БТИ.
Информация
Год постройки
2010
Серия
индвидуальный
Тип дома
монолитный
Планировка
свободная
Район
Первомайский район
Микрорайон
Уручье
Этажность
12
Метро
Уручье
№ дома
2
Улица
ул. Стариновская
Город
г. Минск
Координаты
53.945565, 27.695536
Похожие проекты


