Выполнили проект перепланировки квартиры по ул. Грушевская д. 136 г. Минск
Сегодня: 0, за все время: 118
г. Минск
Московский
9
89
Грушевка
9 минут пешком
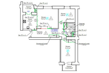
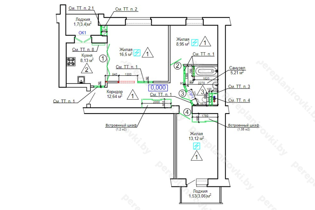
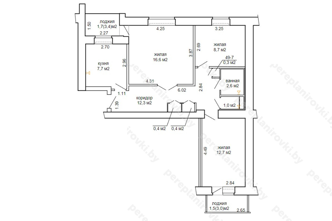
Выполненная перепланировка квартиры по улице Грушевская д. 136 представляет собой следующие решения:
- Получили Разрешение на перепланировку (переустройство) в Администрации Московского района г. Минска
- Разработали строительный проект на перепланировку (переустройство) квартиры на основании решения исполкома. Раздел АС - Архитектурно-строительные решения, Раздел ОВ - Отопление и Вентиляция воздуха.
- Согласовали строй проект в ТС, а также у Начальника отдела Архитектуры и строительства Администрации Московского района г. Минска.
- Осуществили технический надзор на производством работ по гидроизоляции пола санузла, замене радиаторов отопления. Составили акты на скрытые работы.
- Заказали Ведомость БТИ на обмер квартиры после перепланировки.
- Составили акты на ввод в эксплуатацию. Согласовали акты с комиссией, куда входят все заинтересованные лица.
- Подали весь «пакет документов» в Службу Одно Окно для вынесения Решения исполкома «о регистрации актов ввода в БТИ…»
- Зарегистрировали в БТИ Решение исполкома на ввод, заказали новые правоустанавливающие документы, включающие
- - Новый технический паспорт;
- - Новое свидетельство о государственной регистрации БТИ.
Информация
Год постройки
1991
Серия
89
Тип дома
панельный
Планировка
улучшенный проект
Район
Московский район
Микрорайон
Грушевская
Этажность
9
Метро
Грушевка
№ дома
136
Улица
ул. Грушевская
Город
г. Минск
Координаты
53.878734, 27.505093
Похожие проекты
Выполнить аналогичное согласование перепланировки , а также технический надзор можем и Вам. Достаточно оставить заявку "Заказать звонок" либо позвонить нам по телефонам +375 (29) 311-86-94 и +375 (33) 311-86-94
Адекватные цены, сертифицированные и опытные специалисты помогут выбрать Вам оптимальное решение.


