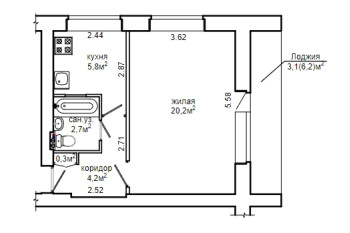
Выполнили проект перепланировки квартиры по ул. Ташкентская д. 20 к. 2 г. Минск
Сегодня: 0, за все время: 111
г. Минск
Заводской
5
МК-5
Выполнили проект перепланировки по улице Ташкентская д. 20 к. 2 в Минске представляет собой следующие решения:
- Получили Разрешение Администрации Заводского района г. Минска на перепланировку (переустройство).
- Разработали архитектурный проект перепланировки (Раздел АС -Архитектурно-строительные работы).
- Согласовали Архитектурно-строительный проект с Начальником управления архитектуры и строительства Администрации Заводского района г. Минска, а также Главным Инженером ЖЭУ.
- Выполнили гидроизоляцию пола вновь образованного санузла.
- Осуществили технический надзор, составили акты на скрытые работы.
- Заказали обмерочную Ведомость БТИ.
- Составили комиссию на ввод в эксплуатацию + согласовали акты ввода с комиссией.
- Получили Решение исполкома на регистрацию изменений после перепланировки в БТИ.
- Зарегистрировали в БТИ Решение исполкома, получили новые правоустанавливающие документы - новый технический паспорт + Свидетельство о гос. Регистрации.
Информация
Год постройки
1967
Серия
МК-5
Тип дома
кирпичный
Планировка
чешский проект
Район
Заводской район
Микрорайон
Чижовка
Этажность
5
№ дома
20/2
Улица
ул. Ташкентская
Город
г. Минск
Координаты
53.843368, 27.633454
Похожие проекты
Выполнить аналогичное согласование перепланировки , а также технический надзор можем и Вам. Достаточно оставить заявку "Заказать звонок" либо позвонить нам по телефонам +375 (29) 311-86-94 и +375 (33) 311-86-94
Адекватные цены, сертифицированные и опытные специалисты помогут выбрать Вам оптимальное решение.


