Выполнили проект перепланировки квартиры по пр-т. Победителей д. 135Б г. Минск
Сегодня: 0, за все время: 97
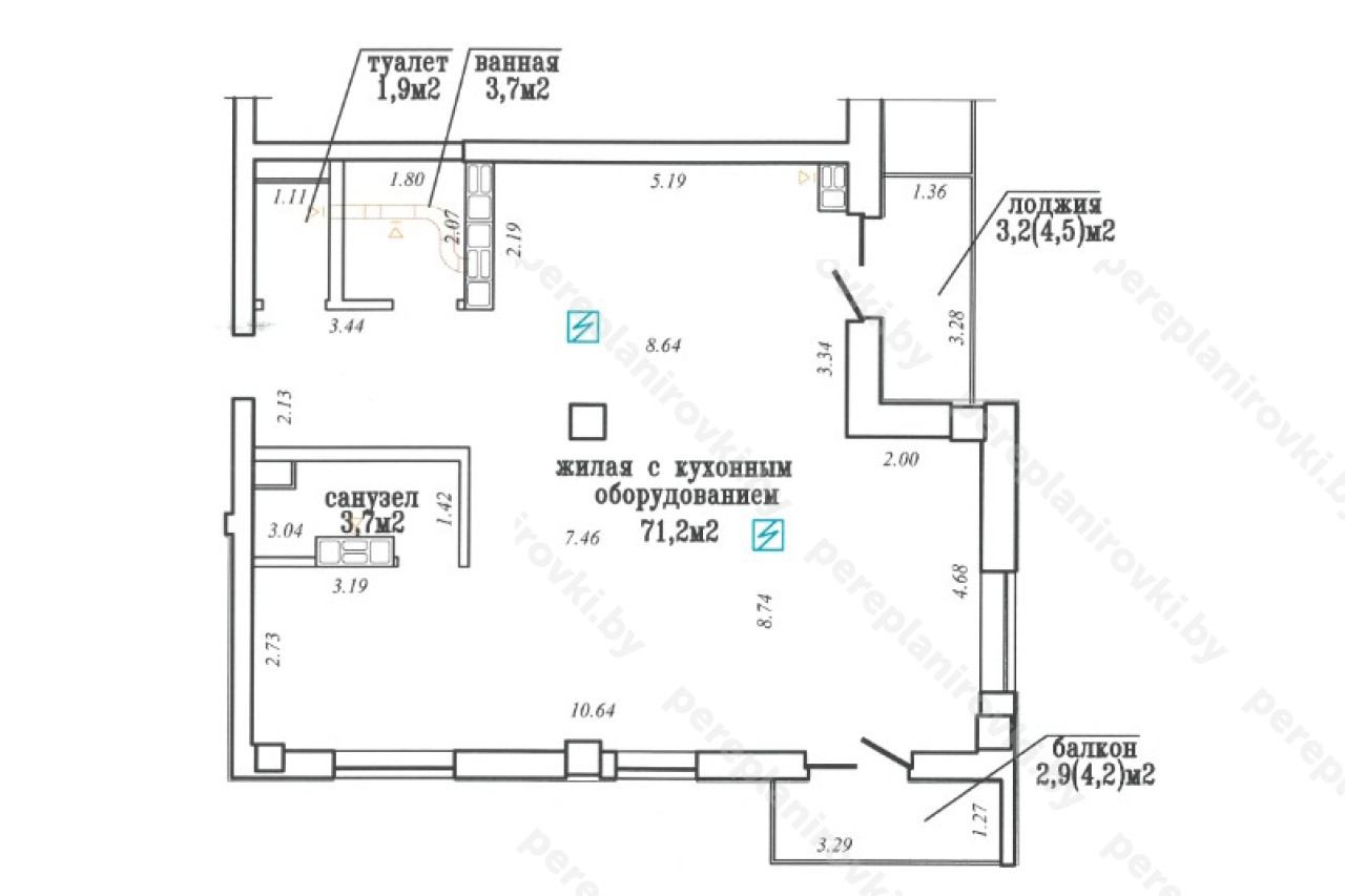
Выполнили проект перепланировки квартиры по пр-т. Победителей д. 135Б в Минске представляет собой следующие решения:
- Получили Разрешение на перепланировку квартиры в администрации Центрального района г. Минска;
- Произвели проектные работы, включая Разделы: АС- Архитектурно-строительные работы, ЭО - Электрооборудование и освещение (предварительно получили технические условия на электроснабжение в ТС, согласовав их в РЭС), так как электрическая плита переносилась в центр помещения (остров), раздел ВК- Внутренние водопровод и канализация, раздел ОВиК - Отопление, вентиляция и кондиционирование воздуха. , ( расширяли проём между кухней и лоджией и в связи с этим переносили радиатор отопления. Отличием проекта данного жилого дома является наличие на второй лоджии канализации под наружный блок кондиционера, в связи с чем слив дренажа не пришлось тянуть в систему канализации К1 в санузле. ;
- Осуществили технический надзор на производством строительных работ. Составили акты на скрытые работы;
- Создали комиссию на ввод в эксплуатацию + составили и согласовали акты ввода в эксплуатацию;
- Подали “пакет документов” в Службу “Одно Окно” Администрации Центрального района г. Минска на Решение принятия актов ввода;
- Получили в исполкоме Решение и зарегистрировали его в БТИ г. Минска, получив по срочному новые правоустанавливающие документы, включающие Новый Технический паспорт + Свидетельство о гос. Регистрации БТИ;
- Заказчик остался доволен работой. Доставили новые документы на квартиру на дом
Информация
Год постройки
2019
Тип дома
монолитный
Жилой комплекс
ЖК D3
Район
Центральный район
Микрорайон
Лебяжий
№ дома
135Б
Улица
пр-т Победителей
Город
г. Минск
Координаты
53.943260, 27.461247
Похожие проекты
Адрес: ул. Купревича, 3, 220141, Минск
Телефоны: +375 17 362-28-07
Сайт: http://d-3.by



