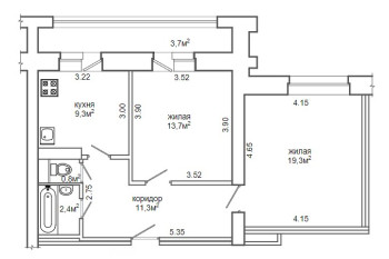
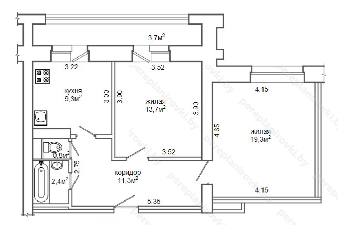
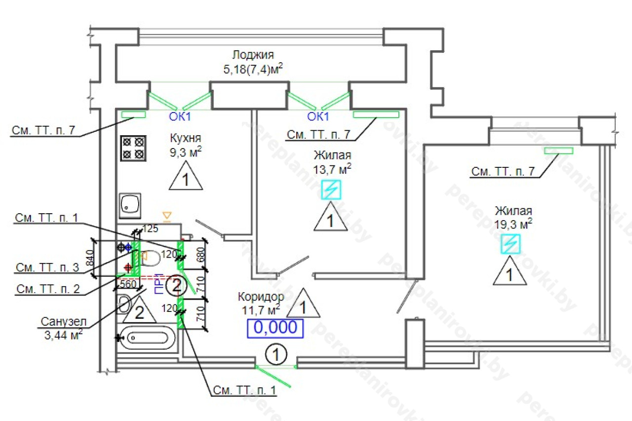
Выполнили проект перепланировки квартиры по ул. Пономаренко д. 56 г. Минск
Сегодня: 0, за все время: 145
г. Минск
Фрунзенский
10
индвидуальный
Спортивная
14 минут пешком
- Получили Разрешение Администрации Фрунзенского района г. Минска на перепланировку (переустройство).
- Разработали архитектурный проект перепланировки (Раздел АС -Архитектурно-строительные работы, ОВ -Отопление и Вентиляция воздуха).
- Согласовали Строительный проект с Зам. Начальника управления архитектуры и строительства Администрации Фрунзенского района г. Минска, а также Председателем ЖЭУ.
- Выполнили строй работы по устройству гидроизоляции пола вновь образованного санузла, замене и переносу радиаторов отопления.
- Осуществили технический надзор, составили акты на скрытые работы.
- Заказали обмерочную Ведомость БТИ.
- Составили комиссию на ввод в эксплуатацию + согласовали акты ввода с комиссией.
- Получили Решение исполкома на регистрацию изменений после перепланировки в БТИ.
- Зарегистрировали в БТИ Решение исполкома, получили новые правоустанавливающие документы - новый технический паспорт + Свидетельство о гос. Регистрации.
Информация
Год постройки
2003
Серия
индвидуальный
Тип дома
кирпичный
Планировка
новостройка
Район
Фрунзенский район
Микрорайон
Одоевского
Этажность
10
Метро
Спортивная
№ дома
56
Улица
ул. Пономаренко
Город
г. Минск
Координаты
53.896485, 27.476410
Похожие проекты
Выполнить аналогичное согласование перепланировки , а также технический надзор можем и Вам. Достаточно оставить заявку "Заказать звонок" либо позвонить нам по телефонам +375 (29) 311-86-94 и +375 (33) 311-86-94
Адекватные цены, сертифицированные и опытные специалисты помогут выбрать Вам оптимальное решение.


