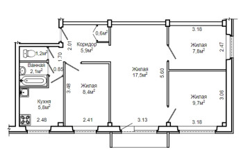
Выполнили проект перепланировки квартиры по ул. Матусевича д. 4 к. 2 г. Минск
Сегодня: 0, за все время: 100
г. Минск
Фрунзенский
5
1-335
Пушкинская
9 минут пешком
Выполнили проект перепланировки по улице Матусевича д. 4 к. 2 в Минске представляет собой следующие решения:
- Получили Разрешение Администрации Фрунзенского района г. Минска на перепланировку (переустройство).
- Разработали архитектурный проект перепланировки (Раздел АС -Архитектурно-строительные работы).
- Согласовали Архитектурно-строительный проект с Зам. Начальника управления архитектуры и строительства Администрации Фрунзенского района г. Минска, а также Председателем ТС.
- Заказали обмерочную Ведомость БТИ.
- Составили комиссию на ввод в эксплуатацию + согласовали акты ввода с комиссией.
- Получили Решение исполкома на регистрацию изменений после перепланировки в БТИ.
- Зарегистрировали в БТИ Решение исполкома, получили новые правоустанавливающие документы - новый технический паспорт + Свидетельство о гос. Регистрации
Информация
Год постройки
1968
Серия
1-335
Тип дома
панельный
Планировка
брежневка
Район
Фрунзенский район
Микрорайон
Матусевича
Этажность
5
Метро
Пушкинская
№ дома
4/2
Улица
ул. Матусевича
Город
г. Минск
Координаты
53.916801, 27.492499
Похожие проекты
Выполнить аналогичное согласование перепланировки , а также технический надзор можем и Вам. Достаточно оставить заявку "Заказать звонок" либо позвонить нам по телефонам +375 (29) 311-86-94 и +375 (33) 311-86-94
Адекватные цены, сертифицированные и опытные специалисты помогут выбрать Вам оптимальное решение.


