Выполнили проект перепланировки квартиры по ул. Основателей д. 19 г. Минск
Сегодня: 0, за все время: 177
г. Минск
Первомайский
19
M-111-90
- Получили Разрешение на перепланировку (переустройство) в Администрации Первомайского района г. Минска.
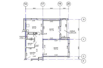
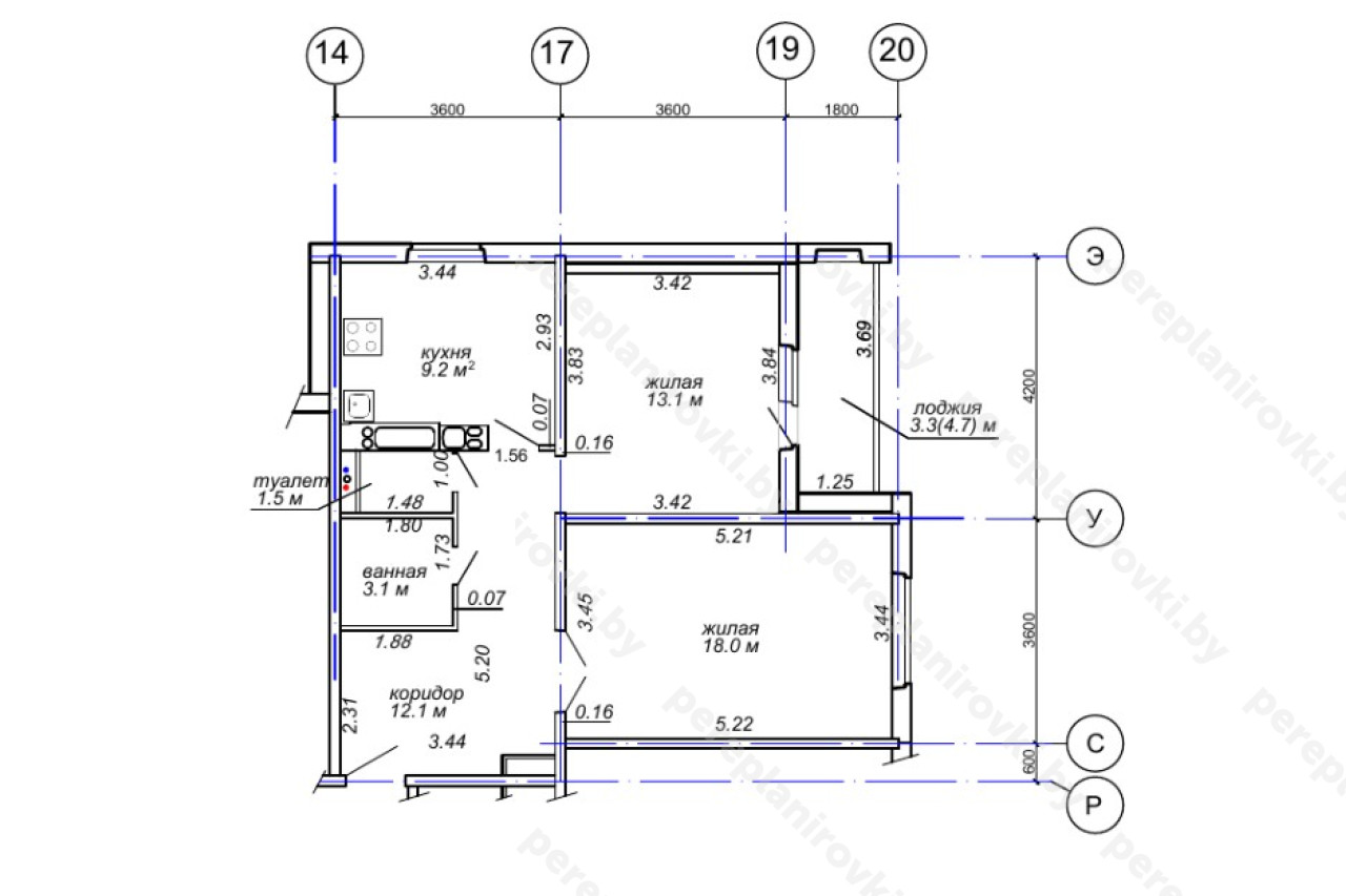
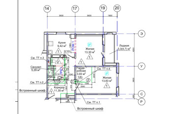
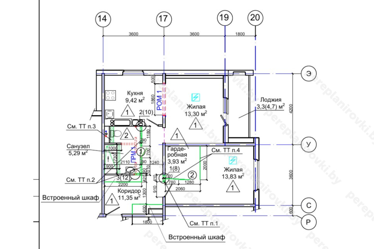
- Выполнили строительный проект на перепланировку. Разделы: АС,КМ, ОПЗ, ТЗ.
- Согласовали проект в исполкоме Первомайского района г. Минска, с Председателем Товарищества Собственников.
- Защитили проект в ГП «Госстройэкспертиза по г. Минску» без единого замечания и получили Положительное Заключение по проекту.
- Выполнили строй работы:
- Устройство проёма между жилой и кухней в несущей стене с усилением металлической рамой опорной РОМ1;
- Устройство гидроизоляции пола во вновь образованном санузле (приложили сертификаты качества).
- Осуществили технический надзор за производством работ. Составили акты на скрытые работы.
- Заказали обмерочную Ведомость в РУП "МГАпоГРиЗК". Согласовали данный документ у Председателя Товарищества Собственников.
- Составили акты на ввод в эксплуатацию. Согласовали акты с комиссией, куда входят все заинтересованные лица.
- Подали весь «пакет документов» в Службу Одно Окно для вынесения Решения исполкома Первомайского района «о регистрации актов ввода в РУП "МГАпоГРиЗК"»
- Зарегистрировали в РУП "МГАпоГРиЗК" Решение исполкома на ввод, заказали новые правоустанавливающие документы, включающие:
- - Новый технический паспорт;
- - Новое свидетельство о государственной регистрации РУП "МОАпоГРиЗК".
Информация
Год постройки
2022
Серия
М-111-90
Тип дома
панельный
Планировка
новостройка
Район
Первомайский район
Микрорайон
Военный городок
Этажность
19
№ дома
19
Улица
ул. Основателей
Город
г. Минск
Координаты
53.944532, 27.726914
Похожие проекты






