Выполнили проект перепланировки квартиры по ул. Якубовского д. 76 г. Минск
Сегодня: 0, за все время: 133
г. Минск
Фрунзенский
9
M-111-90
Кунцевщина
20 минут пешком
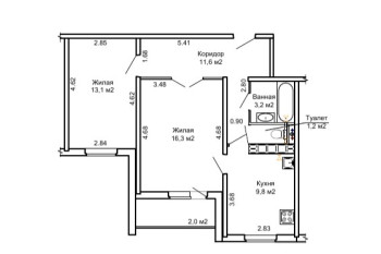
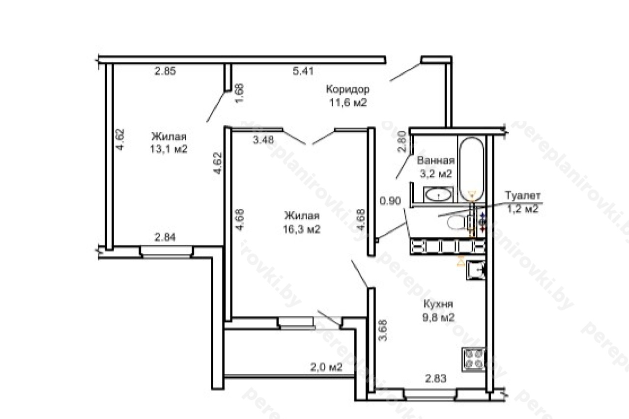
Выполнили перепланировку квартиры по улице Якубовского д. 76 в Минске представляет собой следующие решения:
- Получили Разрешение Администрации Фрунзенского района г. Минска на перепланировку (переустройство).
- Разработали архитектурный проект перепланировки (Раздел АС -Архитектурно-строительные работы).
- Согласовали Архитектурно-строительный проект с Зам. Начальника управления архитектуры и строительства Администрации Фрунзенского района г. Минска, а также Главным Инженером ЖЭУ Фрунзенского района.
- Заказали обмерочную Ведомость БТИ.
- Выполнили строй работы по гидроизоляции вновь образованного санузла.
- Заключили договор на Технический надзор, составили акты на скрытые работы.
- Составили комиссию на ввод в эксплуатацию + согласовали акты ввода с комиссией.
- Получили Решение исполкома на регистрацию изменений после перепланировки в БТИ.
- Зарегистрировали в БТИ Решение исполкома, получили новые правоустанавливающие документы - новый технический паспорт + Свидетельство о гос. Регистрации
Информация
Год постройки
2002
Серия
М-111-90
Проект
М111-90 БС-40/41
Тип дома
панельный
Планировка
улучшенный проект
Район
Фрунзенский район
Микрорайон
Запад
Этажность
9
Метро
Кунцевщина
№ дома
76
Улица
ул. Якубовского
Город
г. Минск
Координаты
53.894357, 27.443730
Похожие проекты
Выполнить аналогичное согласование перепланировки , а также технический надзор можем и Вам. Достаточно оставить заявку "Заказать звонок" либо позвонить нам по телефонам +375 (29) 311-86-94 и +375 (33) 311-86-94
Адекватные цены, сертифицированные и опытные специалисты помогут выбрать Вам оптимальное решение.
МАПИД
Открытое акционерное общество «МАПИД» является ведущим предприятием строительной отрасли г. Минска и Республики Беларусь. На рынке строительства жилья предприятие успешно работает с 1961 года. За эти годы построено и введено в эксплуатацию более 25 м... Подробнее...Год основания: 1961
Адрес: 220036, г. Минск, ул.Р.Люксембург, 205
Телефоны: +375 (17) 209-87-00
Сайт: www.mapid.by
Почта: mail@mapid.by



