Выполнили проект перепланировки квартиры по ул. Виталия Цвирко д. 102 г. Минск
Сегодня: 0, за все время: 186
г. Минск
Советский
7
индвидуальный
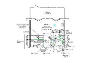
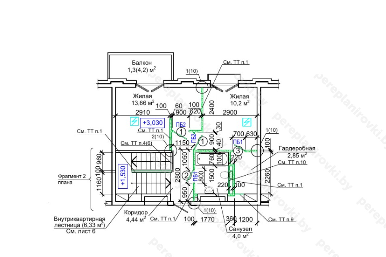
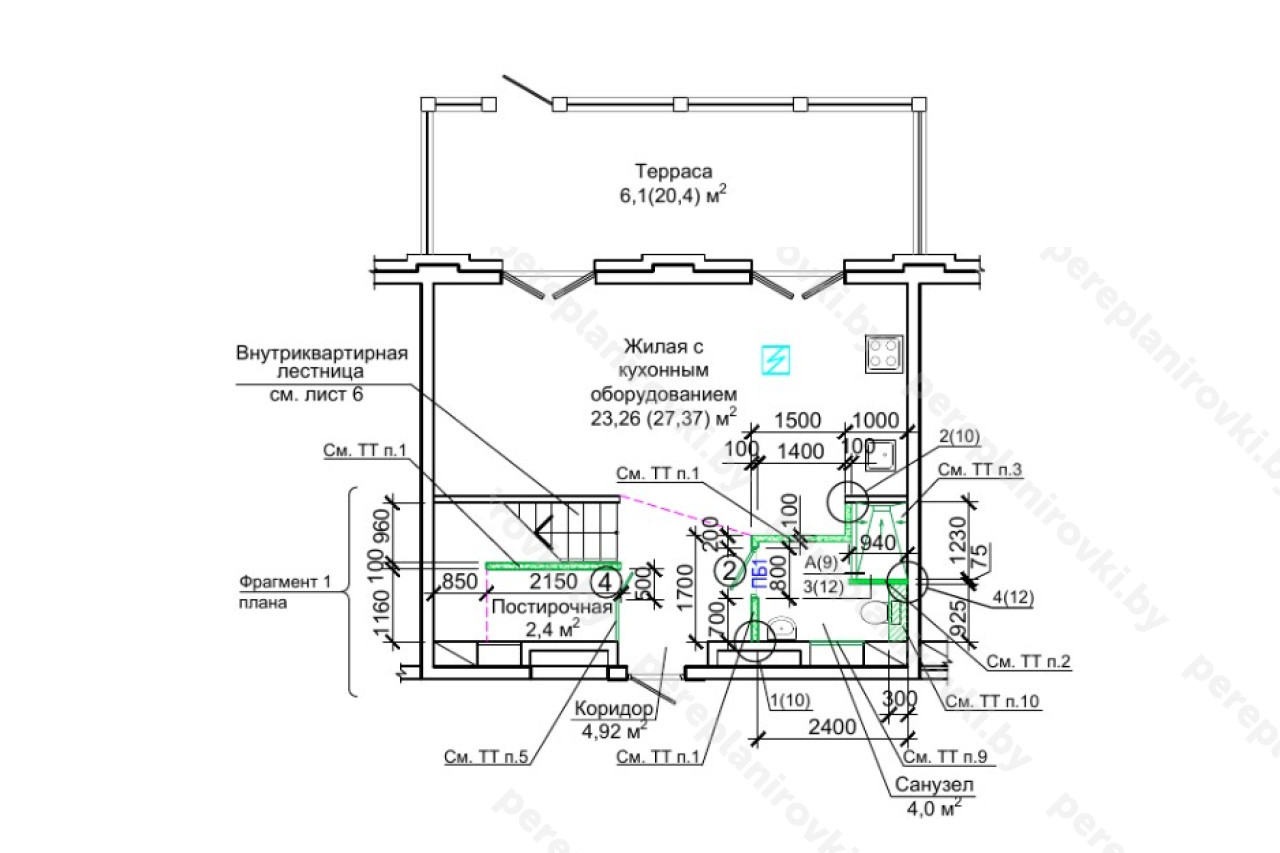
Выполнили перепланировку квартиры по улице Виталия Цвирко д. 102 в Минске представляет собой следующие решения:
- Получили Разрешение Администрации Советского района г. Минска на перепланировку (переустройство).
- Разработали архитектурный проект перепланировки (Раздел АС -Архитектурно-строительные работы). Проект перепланировки 2-х этажной квартиры с устройством лестницы.
- Согласовали Архитектурно-строительный проект с Зам. Начальника управления архитектуры и строительства Администрации Советского района г. Минска, а также Председателем Товарищества Собственников.
- Выполнили стройработы по устройству гидроизоляции пола вновь образованных санузлах первого и второго этажей квартиры. (имеем Сертификаты Соответствия)
- Осуществили технический надзор как ИП Шусталик Р.А., составили акты на скрытые работы. (имееем аттестаты Соответствия МАиСт РБ)
- Заказали обмерочную Ведомость БРТИ.
- Составили комиссию на ввод в эксплуатацию + согласовали акты ввода с комиссией.
- Получили Решение исполкома на регистрацию изменений после перепланировки в БРТИ.
- Зарегистрировали в БРТИ Решение исполкома, получили новые правоустанавливающие документы - новый технический паспорт + Свидетельство о гос. Регистрации.
Информация
Год постройки
2024
Серия
индвидуальный
Тип дома
монолитный
Жилой комплекс
ЖК Северный берег
Планировка
свободная
Район
Советский район
Микрорайон
Будславская
Этажность
7
№ дома
102
Улица
ул. Виталия Цвирко
Город
г. Минск
Координаты
53.965158, 27.568344
Дом
Спрингвуд 1
Похожие проекты
Выполнить аналогичное согласование перепланировки , а также технический надзор можем и Вам. Достаточно оставить заявку "Заказать звонок" либо позвонить нам по телефонам +375 (29) 311-86-94 и +375 (33) 311-86-94
Адекватные цены, сертифицированные и опытные специалисты помогут выбрать Вам оптимальное решение.
Риверсайд Девелопмент Лимитед
Риверсайд Девелопмент Лимитед — современная девелоперская компания, работающая в Минске, Беларусь, ориентированная на реализацию архитектурно значимых и комфортных жилых проектов. Компания зарегистрирована в 2021 году и активно развивает рынок недви... Подробнее...Год основания: 2021
Адрес: г. Минск, ул. Свердлова, 11-329
Телефоны: 8 (017) 311-68-88
Сайт: northwaterfront.by
Почта: info@northwaterfront.by






