Выполнили проект перепланировки квартиры по ул. Филатова д. 14 г. Минск
Сегодня: 0, за все время: 111
г. Минск
Заводской
5
1-447С
Партизанская
7 минут пешком
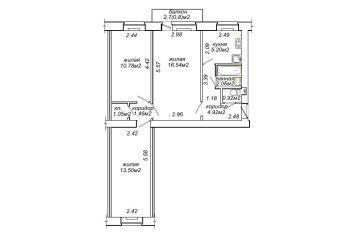
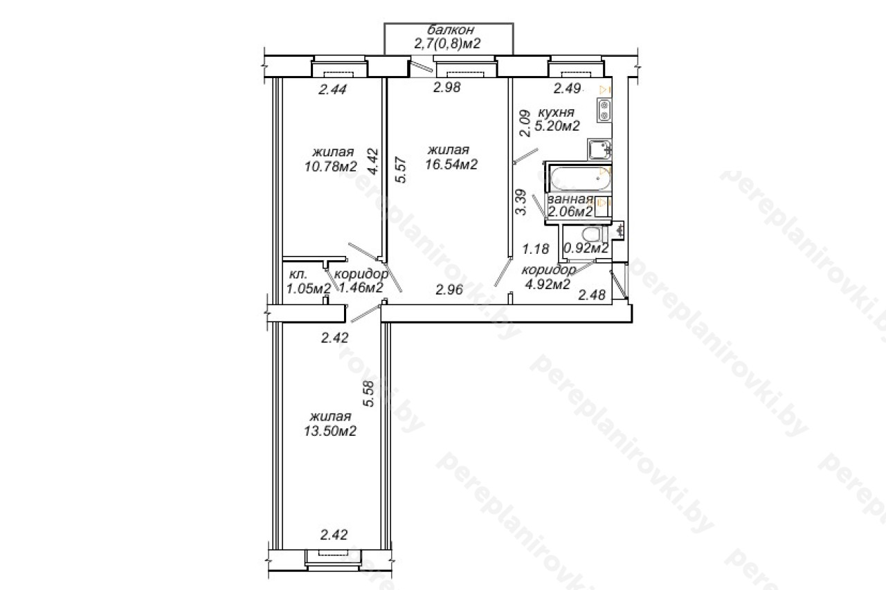
Выполнили проект перепланировки квартиры по улице Филатова д. 14 в Минске представляет собой следующие решения:
- Получили Разрешение Администрации Заводского района г. Минска на перепланировку (переустройство).
- Разработали архитектурный проект перепланировки (Раздел АС -Архитектурно- строительные работы, Раздел ОВ - Отопление и Вентиляция воздуха).
- Согласовали Архитектурно-строительный проект с Зам. Начальника управления архитектуры и строительства Администрации Заводского района г. Минска, а также Главным Инженером ЖЭУ, УП "Мингаз".
- Выполнили гидроизоляцию пола вновь образованных туалета и ванной.
- Осуществили технический надзор, составили акты на скрытые работы.
- Заказали обмерочную Ведомость БТИ.
- Составили комиссию на ввод в эксплуатацию + согласовали акты ввода с комиссией.
- Получили Решение исполкома на регистрацию изменений после перепланировки в БТИ.
- Зарегистрировали в БТИ Решение исполкома, получили новые правоустанавливающие документы - новый технический паспорт + Свидетельство о гос. Регистрации.
Информация
Год постройки
1966
Год капитального ремонта
2022
Серия
1-447С
Тип дома
кирпичный
Планировка
хрущевка
Район
Заводской район
Микрорайон
Народная
Этажность
5
Метро
Партизанская
№ дома
14
Улица
ул. Филатова
Город
г. Минск
Координаты
53.869869, 27.630040
Похожие проекты
Выполнить аналогичное согласование перепланировки , а также технический надзор можем и Вам. Достаточно оставить заявку "Заказать звонок" либо позвонить нам по телефонам +375 (29) 311-86-94 и +375 (33) 311-86-94
Адекватные цены, сертифицированные и опытные специалисты помогут выбрать Вам оптимальное решение.


