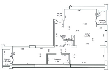
Выполнили проект перепланировки квартиры по пр-т. Дзержинского д. 19 г. Минск
Сегодня: 0, за все время: 133
г. Минск
Московский
20
монолитный
Грушевка
2 минут пешком
Выполнили проект перепланировки квартиры по пр-т Дзержинского д.19 в Минске представляет собой следующие решения:
- Получили Разрешение на перепланировку (переустройство) в Администрации Московского района г. Минска
- Разработали строительный проект на перепланировку (переустройство) квартиры на основании решения исполкома. Раздел АС - Архитектурно-строительные решения.
- Согласовали строй проект в ТС, а также у Начальника отдела Архитектуры и строительства Администрации Московского района г. Минска.
- Осуществили технический надзор на производством работ по гидроизоляции пола санузла. Составили акты на скрытые работы.
- Выполнили строительные работы по сантехнике и электрике.
- Заказали Ведомость БТИ на обмер квартиры после перепланировки.
- Составили акты на ввод в эксплуатацию. Согласовали акты с комиссией, куда входят все заинтересованные лица.
- Подали весь «пакет документов» в Службу Одно Окно для вынесения Решения исполкома «о регистрации актов ввода в БТИ…»
- Зарегистрировали в БТИ Решение исполкома на ввод, заказали новые правоустанавливающие документы, включающие
- - Новый технический паспорт;
- - Новое свидетельство о государственной регистрации БТИ.
Информация
Год постройки
2018
Серия
индвидуальный
Тип дома
монолитный
Жилой комплекс
ЖК Гранд Хаус
Планировка
свободная
Район
Московский район
Микрорайон
Грушевская
Этажность
20
Метро
Грушевка
№ дома
19
Улица
пр-т. Дзержинского
Город
г. Минск
Стиль
постмодернизм
Координаты
53.886154, 27.516098
Похожие проекты
Год основания: 2012
Адрес: г. Минск, пр. Дзержинского, 19, офис 860
Телефоны: +375 44 534-30-00
Сайт: grandavenue.by
Почта: sales@grandavenue.by









