Выполнили проект перепланировки квартиры по ул. Гикало д. 18 г. Минск
Сегодня: 0, за все время: 94
г. Минск
Советский
5
1-447С
Площадь Якуба Коласа
6 минут пешком
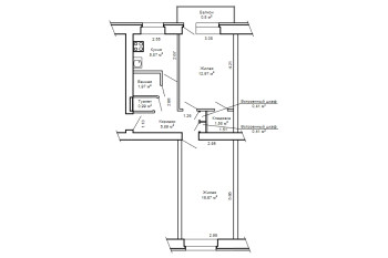
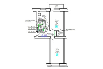
Выполнили проект перепланировки по улице Гикало д. 18 в Минске представляет собой следующие решения:
- Получили Разрешение Администрации Советского района г. Минска на перепланировку (переустройство).
- Разработали архитектурный проект перепланировки (Раздел АС -Архитектурно-строительные работы).
- Согласовали Архитектурно-строительный проект с Зам. Начальника управления архитектуры и строительства Администрации Советского района г. Минска, а также главным инженером ЖЭУ.
- Выполнили стройработы по устройству гидроизоляции пола вновь образованного санузла.
- Осуществили технический надзор, составили акты на скрытые работы.
- Заказали обмерочную Ведомость БТИ.
- Составили комиссию на ввод в эксплуатацию + согласовали акты ввода с комиссией.
- Получили Решение исполкома на регистрацию изменений после перепланировки в БТИ.
- Зарегистрировали в БТИ Решение исполкома, получили новые правоустанавливающие документы - новый технический паспорт + Свидетельство о гос. Регистрации
Информация
Год постройки
1967
Серия
1-447С
Тип дома
кирпичный
Планировка
хрущевка
Район
Советский район
Микрорайон
Гикало
Этажность
5
№ дома
18
Город
г. Минск
Координаты
53.913115, 27.591592
Похожие проекты
Выполнить аналогичное согласование перепланировки , а также технический надзор можем и Вам. Достаточно оставить заявку "Заказать звонок" либо позвонить нам по телефонам +375 (29) 311-86-94 и +375 (33) 311-86-94
Адекватные цены, сертифицированные и опытные специалисты помогут выбрать Вам оптимальное решение.


