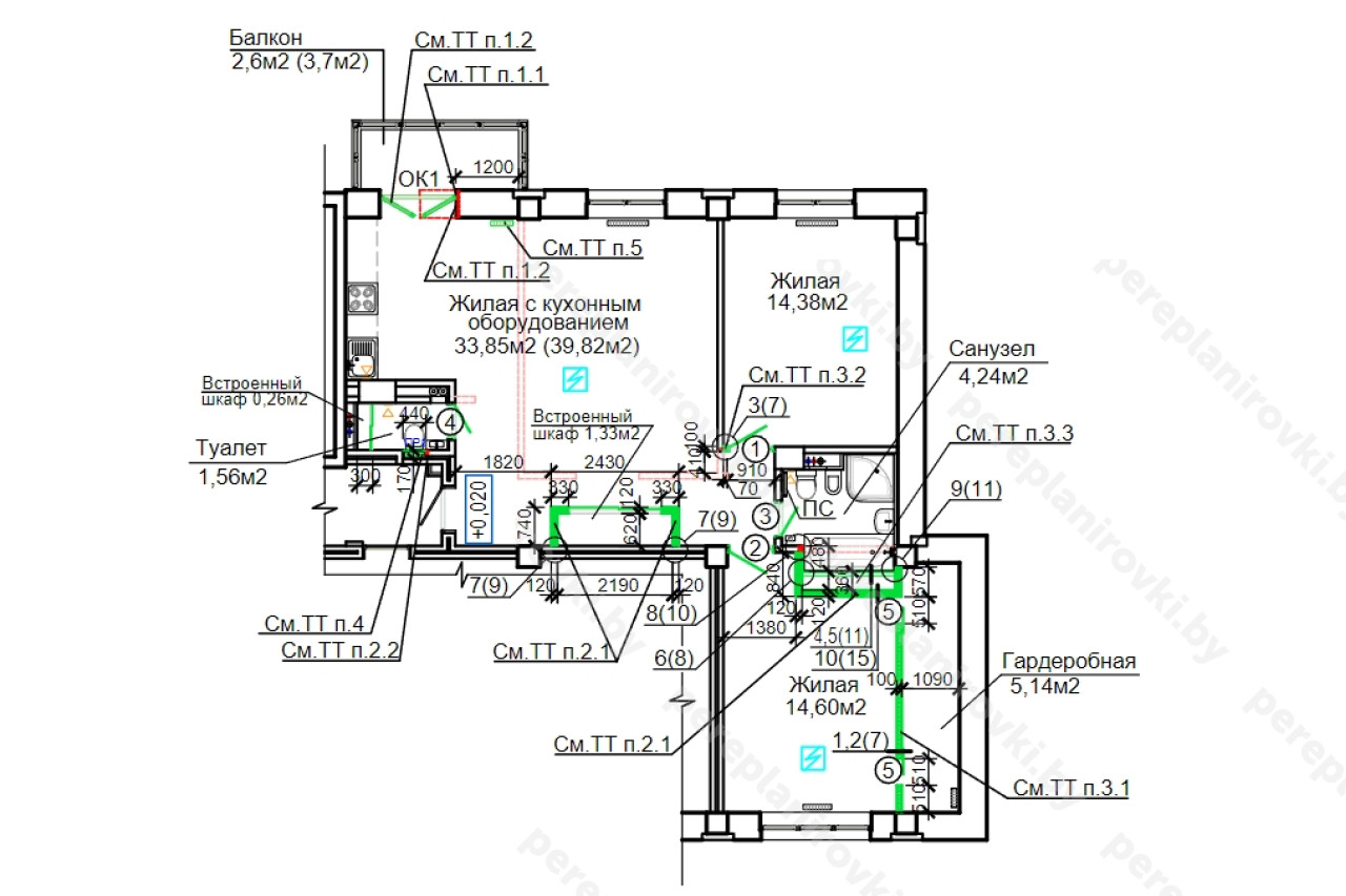
Выполнили проект перепланировки квартиры по ул. Камайская д. 14 г. Минск
Сегодня: 0, за все время: 114
г. Минск
Центральный
9
индвидуальный
Выполненная перепланировка квартиры по улице Камайская д. 14 представляет собой следующие решения:
- Получили Разрешение на перепланировку (переустройство) в Администрации Центрального района г. Минска
- Разработали строительный проект на перепланировку (переустройство) квартиры на основании решения исполкома. Раздел АС - Архитектурно-строительные решения, Раздел ОВ - Отопление и Вентиляция воздуха, Раздел ВК - Внутренние водопровод и канализация, Раздел ЭС - Внутреннее электрооборудование.
- Согласовали строй проект в ТС, а также у Начальника отдела Архитектуры и строительства Администрации Центрального района г. Минска.
- Выполнили строй работы по устройству гидроизоляции пола вновь образованного санузла.
- Выполнили строй работы по переносу и замене радиаторов отопления.
- Осуществили технический надзор на производством работ по гидроизоляции пола санузла. Составили акты на скрытые работы.
- Заказали Ведомость БТИ на обмер квартиры после перепланировки.
- Составили акты на ввод в эксплуатацию. Согласовали акты с комиссией, куда входят все заинтересованные лица.
- Подали весь «пакет документов» в Службу Одно Окно для вынесения Решения исполкома «о регистрации актов ввода в БТИ…»
- Зарегистрировали в БТИ Решение исполкома на ввод, заказали новые правоустанавливающие документы, включающие
- - Новый технический паспорт;
- - Новое свидетельство о государственной регистрации БТИ.
Информация
Год постройки
2014
Серия
индвидуальный
Тип дома
монолитный
Планировка
новостройка
Район
Центральный район
Микрорайон
Лебяжий
Этажность
9
№ дома
14
Улица
ул. Камайская
Город
г. Минск
Координаты
53.935495, 27.459405
Похожие проекты
Выполнить аналогичное согласование перепланировки , а также технический надзор можем и Вам. Достаточно оставить заявку "Заказать звонок" либо позвонить нам по телефонам +375 (29) 311-86-94 и +375 (33) 311-86-94
Адекватные цены, сертифицированные и опытные специалисты помогут выбрать Вам оптимальное решение.


