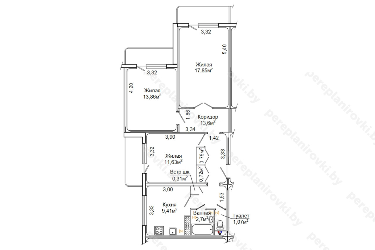
Выполнили проект перепланировки квартиры по ул. Тимошенко д. 20 к. 3 г. Минск
Сегодня: 0, за все время: 107
г. Минск
Фрунзенский
9
3А-ОПБ
Кунцевщина
8 минут пешком
Выполнили проект перепланировки квартиры по улице Тимошенко д. 20 к. 3 в Минске представляет собой следующие решения:
- Получили Разрешение Администрации Фрунзенского района г. Минска на перепланировку (переустройство).
- Разработали архитектурный проект перепланировки (Раздел АС -Архитектурно-строительные работы).
- Согласовали Архитектурно-строительный проект с Зам. Начальника управления архитектуры и строительства Администрации Фрунзенского района г. Минска, а также Председателем ТС.
- Заказали обмерочную Ведомость БТИ.
- Выполнили строй работы по гидроизоляции вновь образованного санузла. (имеем соответствующие Сертификаты).
- Заключили договор на Технический надзор как ИП Шусталик Р.А., составили акты на скрытые работы.
- Составили комиссию на ввод в эксплуатацию + согласовали акты ввода с комиссией.
- Получили Решение исполкома на регистрацию изменений после перепланировки в БТИ.
- Зарегистрировали в БТИ Решение исполкома, получили новые правоустанавливающие документы - новый технический паспорт + Свидетельство о гос. Регистрации
Информация
Год постройки
1983
Серия
3а-ОПБ
Тип дома
панельный
Планировка
улучшенный проект
Район
Фрунзенский район
Микрорайон
Запад
Этажность
9
Метро
Кунцевщина
№ дома
20/3
Улица
ул. Тимошенко
Город
г. Минск
Координаты
53.900788, 27.459711
Похожие проекты
Выполнить аналогичное согласование перепланировки , а также технический надзор можем и Вам. Достаточно оставить заявку "Заказать звонок" либо позвонить нам по телефонам +375 (29) 311-86-94 и +375 (33) 311-86-94
Адекватные цены, сертифицированные и опытные специалисты помогут выбрать Вам оптимальное решение.


