Выполнили проект перепланировки квартиры по ул. Розы Люксембург д. 162 г. Минск
Сегодня: 0, за все время: 126
г. Минск
Московский
5
БМ-2
Грушевка
7 минут пешком
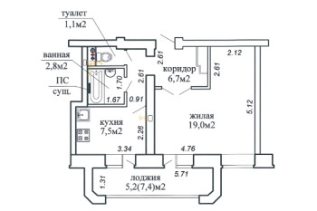
Выполнили перепланировку квартиры по улице Розы Люксембург д. 162 в Минске представляет собой следующие решения:
- Получили Разрешение Администрации Московского района на перепланировку (переустройство ) квартиры.
- Выполнили Строительный проект, состоящий из раздела АС - Архитектурно-строительные решения; ОВ - Отопление и вентиляция .
- Согласовали строй проект в ЖЭУ, а также у начальника Управления Архитектуры и строительства Администрации Московского района г. Минска.
- Выполнили строй работы по демонтажу всех перегородок, а также старой штукатурки на стенах, в итоге получился из квартиры просто квадрат.
- Выполнили работы по замене радиаторов отопления и подводок к ним. По проекту скрыли магистрали отопления (Трубы) в стены с заменой на пластик в защите "Пешель".
- Заказали Обмерочную Ведомость БТИ + составили и согласовали акты на скрытые работы.
- Подали пакет документов в Службу "Одно Окно" на получение Разрешения исполкома на регистрацию актов ввода.
- Получили Решение исполкома и зарегистрировали его в БТИ г. Минска и получили новые правоустанавливающие документы, включающие новый технический паспорт + Свидетельство о гос. регистрации БТИ.
Информация
Год постройки
2007
Серия
БМ-2
Тип дома
кирпичный
Планировка
сталинка
Район
Московский район
Микрорайон
Люксембург
Метро
Грушевка
№ дома
162
Улица
ул. Розы Люксембург
Город
г. Минск
Стиль
постмодернизм
Координаты
53.890038, 27.507465
Похожие проекты


