Выполнили проект перепланировки квартиры по ул. Братская д. 2 г. Минск
Сегодня: 0, за все время: 114
г. Минск
Октябрьский
13
Аэродромная
5 минут пешком
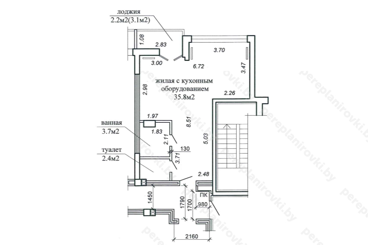
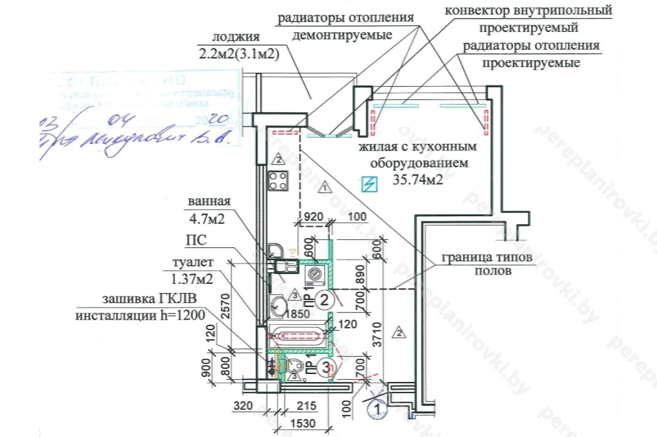
Выполнили проект перепланировки квартиры а также строительные работы по ул. Братская д.2 в Минске представляет собой следующие решения:
- Получили Разрешение Администрации Октябрьского района г. Минска на перепланировку (переустройство).
- Разработали архитектурный проект перепланировки (Раздел АС -Архитектурно-строительные работы, ОВ - Отопление и вентиляция)).
- Согласовали Архитектурно-строительный проект с Зам. Начальника управления архитектуры и строительства Администрации Октябрьского района г. Минска, а также Председателем ТС.
- Выполнили стройработы по устройству гидроизоляции пола вновь образованного санузла, а также переносу и замене радиатора отопления.
- Осуществили технический надзор, составили акты на скрытые работы.
- Заказали обмерочную Ведомость БТИ.
- Составили комиссию на ввод в эксплуатацию + согласовали акты ввода с комиссией.
- Получили Решение исполкома на регистрацию изменений после перепланировки в БТИ.
- Зарегистрировали в БТИ Решение исполкома, получили новые правоустанавливающие документы - новый технический паспорт + Свидетельство о гос. Регистрации.
Информация
Год постройки
2018
Квартал
Эмираты
Серия
индвидуальный
Тип дома
каркасно-блочный
Жилой комплекс
ЖК Minsk World
Планировка
свободная
Район
Октябрьский район
Микрорайон
Минск Мир
Этажность
13
Метро
Аэродромная
№ дома
2
Улица
ул. Братская
Город
г. Минск
Стиль
постмодернизм
Координаты
53.870930, 27.553522
Похожие проекты
Dana Holdings
«Дана Холдингз» («Dana Holdings») – международная строительная компания. В состав группы входят в том числе ИООО «Дана Астра», ИООО «ЗомексИнвестмент» и СООО «Белинте-Роба», которые осуществляют деятельность в Республике Беларусь. Компания осуществля... Подробнее...Год основания: 2007
Адрес: 220114, г. Минск, ул. П. Мстиславца, д.5, помещение 207, комната 2
Телефоны: +375 17 388-17-19
Сайт: https://bir.by
Почта: bir@bir.by



