Выполнили проект перепланировки квартиры по ул. Рыбалко д. 8 г. Минск
Сегодня: 0, за все время: 163
г. Минск
Ленинский
9
89
Пролетарская
8 минут пешком
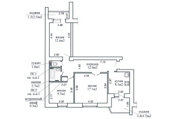
Выполнили проект перепланировки квартиры а также строительные работы по ул. Рыбалко д.8 в Минске представляет собой следующие решения:
- Получили Разрешение Администрации Ленинского района на перепланировку (переустройство ) квартиры.
- Выполнили Строительный проект, состоящий из раздела АС - Архитектурно-строительные решения, ОВ - Отопление и вентиляция.
- Согласовали строй проект в ЖЭУ, а также у Заместителя начальника Управления Архитектуры и строительства Администрации Ленинского района г. Минска.
- Выполнили строй работы по демонтажу всех перегородок, а также старой штукатурки на стенах, в итоге получился из квартиры просто квадрат.
- Затем выполнили кладку перегородок с последующим оштукатуриванием стен из блоков из ячеистого бетона.
- Выполнили работы по сантехнике.
- Выполнили работы по замене радиаторов отопления и подводок к ним. По проекту скрыли магистрали отопления (Трубы) в стены с заменой на пластик в защите "Пешель".
- Выполнили электромонтажные работы во всей квартире, устроив щиток в квартире с отдельными автоматами.
- Залили черновую и чистовую стяжки во всей квартире.
- Выполнили отделочные работы включая укладку плитки, шпатлёвку и покраску, укладку паркетной доски.
- Осуществили технический надзор за строительными работами.
- Заказали Обмерочную Ведомость БТИ+ составили и согласовали акты на скрытые работы.
- Подали пакет документов в Службу "Одно Окно" на получение Разрешения исполкома на регистрацию актов ввода.
- Получили Решение исполкома и зарегистрировали его в БТИ г. Минска и получили Новые правоустанавливающие документы, включающие Новый технический паспорт + Свидетельство о гос. Регистрации БТИ.
Информация
Год постройки
1988
Серия
89
Тип дома
кирпичный
Планировка
улучшенный проект
Район
Ленинский район
Микрорайон
Судмалиса
Этажность
9
Метро
Пролетарская
№ дома
8
Улица
ул. Рыбалко
Город
г. Минск
Координаты
53.886589, 27.595635
Похожие проекты


