Выполнили проект перепланировки квартиры по ул. Голубева д. 14 г. Минск
Сегодня: 0, за все время: 184
г. Минск
Московский
9
М-464
Петровщина
8 минут пешком
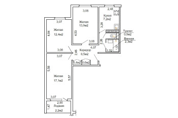
Выполнили согласование перепланировки квартиры по улице Голубева д. 14 в Минске представляет собой следующие решения:
- Выполнили конструкторские расчёты на усиление существующего проёма между жилой и кухней квартиры.
- Выполнили строй работы по усилению рамой опорной металлической РОМ1 существующего проёма между жилой и кухней квартиры.
- Убрали и вывезли строительный мусор на полигон "Тростенец" с предоставлением Заказчику Договора (нужен в исполком).
- Заказали обмерочную Ведомость в МГАпоГРиЗК.
- Согласовали Ведомость МГАпоГРиЗК у Главного инженера ЖЭУ Московского района г. Минска.
- Изготовили Техническое Заключение о состоянии несущих конструкций.
- Привлекли собственника квартиры к административной ответственности в виде штрафа в ЖЭУ Московского района г. Минска.
- Оплатили штраф в 0,5 Б.В.
- Составили и согласовали акт выполненных работ по самовольной перепланировке у Главного инженера ЖЭУ Московского района г. Минска.
- Подали "пакет" документов в службу Одно Окно Администрации Московского района г. Минска на вынесение решения о "регистрации самовольной реконструкции".
- Получили положительную Выписку из Решения администрации Московского района г. Минска.
- Зарегистрировали Выписку из Решения исполкома в МГАпоГРиЗК и заказали новые правоустанавливающие документы.
- Получили в МГАпоГРиЗК новый Тех. паспорт на квартиру + Новое свидетельство о гос. Регистрации.
- Передали на офисе готовые все готовые документы Заказчику.
Информация
Год постройки
1978
Серия
М-464
Тип дома
панельный
Планировка
стандартный проект
Район
Московский район
Микрорайон
Юго-Запад
Этажность
9
Метро
Петровщина
№ дома
14
Улица
ул. Голубева
Город
г. Минск
Координаты
53.865780, 27.474560
Похожие проекты
Выполнить аналогичное согласование перепланировки , а также технический надзор можем и Вам. Достаточно оставить заявку "Заказать звонок" либо позвонить нам по телефонам +375 (29) 311-86-94 и +375 (33) 311-86-94
Адекватные цены, сертифицированные и опытные специалисты помогут выбрать Вам оптимальное решение.







