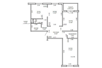
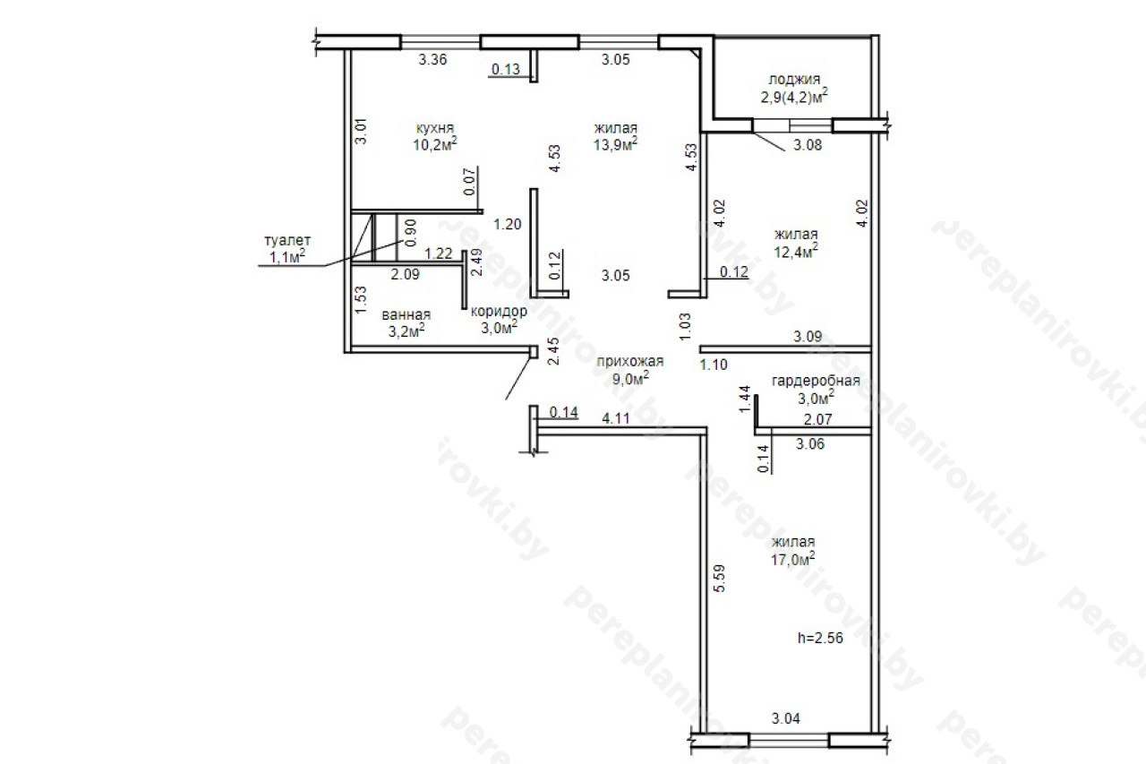
Выполнили проект перепланировки квартиры по ул. Брестская д. 11 к. 1 г. Фаниполь
Сегодня: 0, за все время: 127
г. Фаниполь
5
М-464
Выполненная перепланировка квартиры по улице Брестская д. 11 к. 1 представляет собой следующие решения:
- Получили Разрешение Администрации Дзержинского района Минской области на перепланировку (переустройство).
- Разработали архитектурный проект перепланировки (Раздел АС -Архитектурно-строительные работы).
- Согласовали Архитектурно-строительный проект с Начальником управления архитектуры и строительства Администрации Дзержинского района Минской области, а также Главным Инженером ТС.
- Выполнили работы по гидроизоляции пола вновь образованного санузла.
- Осуществили технический надзор, составили акты на скрытые работы.
- Заказали обмерочную Ведомость БТИ.
- Составили комиссию на ввод в эксплуатацию + согласовали акты ввода с комиссией.
- Получили Решение исполкома на регистрацию изменений после перепланировки в БТИ.
- Зарегистрировали в БТИ Решение исполкома, получили новые правоустанавливающие документы - новый технический паспорт + Свидетельство о гос. Регистрации.
Информация
Год постройки
2022
Серия
М-464
Область
Минская область
Тип дома
панельный
Планировка
новостройка
Этажность
5
№ дома
11/1
Улица
ул. Брестская
Город
г. Фаниполь
Координаты
53.744567, 27.319520
Похожие проекты
Выполнить аналогичное согласование перепланировки , а также технический надзор можем и Вам. Достаточно оставить заявку "Заказать звонок" либо позвонить нам по телефонам +375 (29) 311-86-94 и +375 (33) 311-86-94
Адекватные цены, сертифицированные и опытные специалисты помогут выбрать Вам оптимальное решение.


