Выполнили проект перепланировки квартиры по ул. Авиационная д. 57 д. Копище
Сегодня: 0, за все время: 42
д. Копище
Минский
10
74М
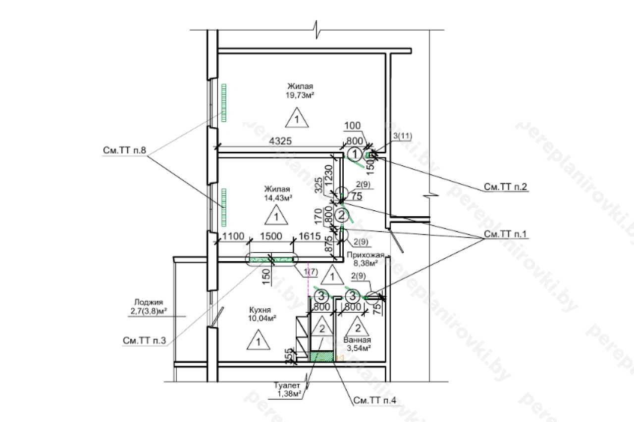
Выполнили проект перепланировки по улице Авиационная д. 57 в Копище представляет собой следующие решения:
- Получили Решение Минского района на перепланировку.
- Разработали строительный проект, включая разделы: АС,ОВ,ОПЗ.
- Согласовали проект в Управлении архитектуры и строительства Администрации Минского района, в Товариществе Собственников.
- Выполнили строй работы по гидроизоляции вновь образованного санузла (предоставили Свидетельство о тех. компетентности).
- Осуществили технический надзор за производством работ, составили акты на скрытые работы. (ИП Шусталик Р.А)
- Заказали Обмерочную Ведомость в РУП "МОАпоГРиЗК", согласовали её с председателем Товарищества Собственников Антониной.
- Созвали комиссию на ввод квартиры в эксплуатацию после реконструкции + составили и согласовали с комиссией акты на ввод в эксплуатацию.
- Получили решение Администрации Минского района на регистрацию актов ввода после перепланировки в РУП "МОАпоГРиЗК".
- Зарегистрировали акты ввода + Решение исполкома в РУП "МОАпоГРиЗК" – получили новые правоустанавливающие документы:
- Новый Технический паспорт.
- Новое свидетельство о государственной регистрации БТИ на имя собственника квартиры.
Информация
Год постройки
2025
Квартал
Сиреневый
Серия
74М
Область
Минская область
Тип дома
панельный
Жилой комплекс
ЖК Новая Боровая
Планировка
новостройка
Район
Минский район
Этажность
10
Сельсовет
Боровлянский с/с
№ дома
57
Улица
ул. Авиационная
Город
д. Копище
Стиль
постмодернизм
Координаты
53.961265, 27.658499
Похожие проекты
Выполнить аналогичное согласование перепланировки , а также технический надзор можем и Вам. Достаточно оставить заявку "Заказать звонок" либо позвонить нам по телефонам +375 (29) 311-86-94 и +375 (33) 311-86-94
Адекватные цены, сертифицированные и опытные специалисты помогут выбрать Вам оптимальное решение.
Адрес: 223053, Минский р-н, д. Боровая, 7
Телефоны: +375 29 300 00 00
Сайт: www.a-100development.by
Почта: a-100@a-100.by



