Выполнили проект перепланировки квартиры по ул. Куйбышева д. 46 г. Минск
Сегодня: 0, за все время: 139
г. Минск
Советский
9
М-335
Площадь Якуба Коласа
13 минут пешком
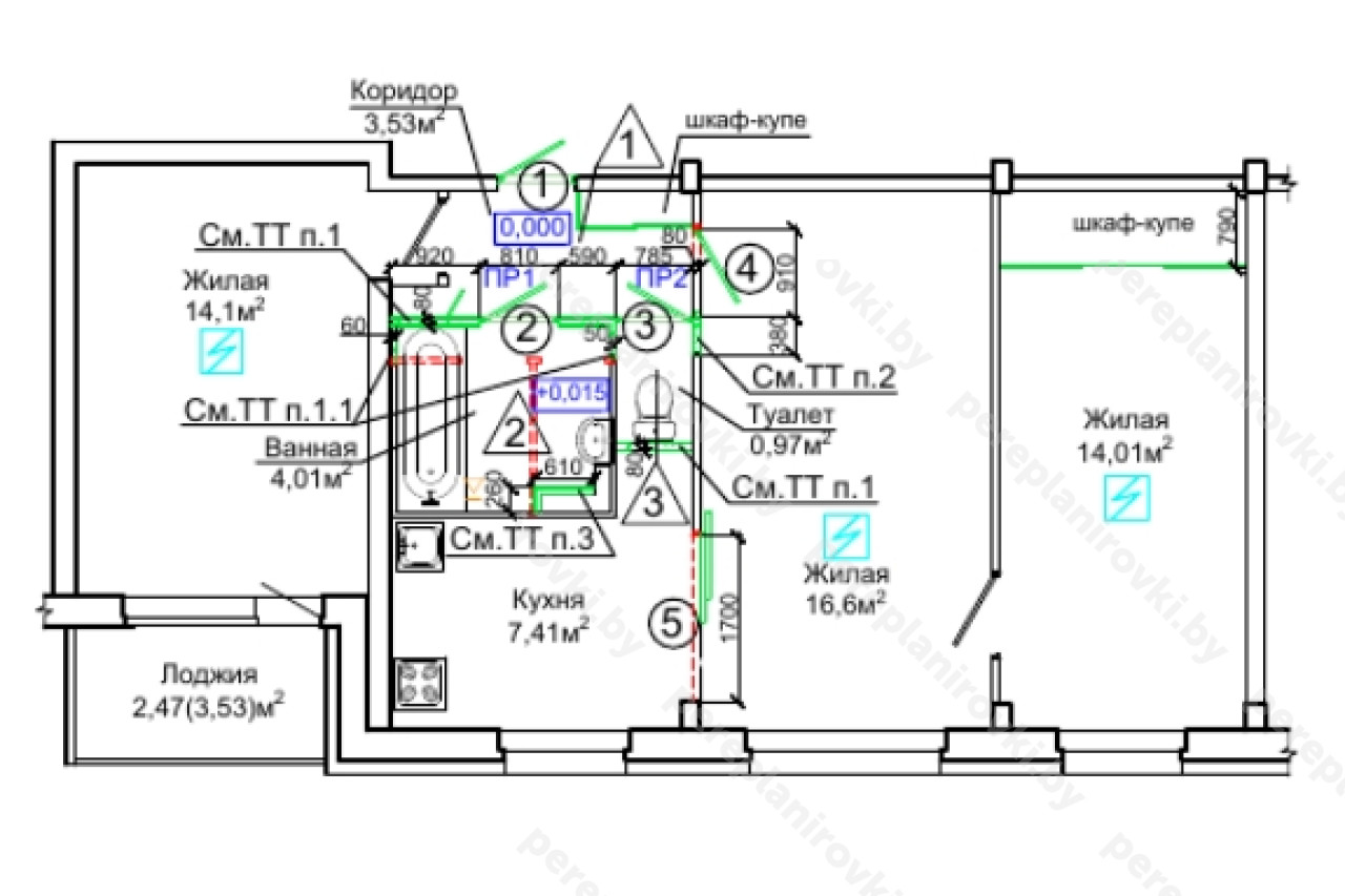
Выполнили проект перепланировки по улице Куйбышева д. 46 в Минске представляет собой следующие решения:
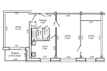
ПРОЕКТ №1
- Получили Разрешение Администрации Советского района г. Минска на перепланировку (переустройство).
- Разработали архитектурный проект перепланировки (Раздел АС -Архитектурно-строительные работы).
- Согласовали Архитектурно-строительный проект с Зам. Начальника управления архитектуры и строительства Администрации Советского района г. Минска, а также Председателем ТС.
- Выполнили стройработы по устройству гидроизоляции пола вновь образованного санузла.
- Осуществили технический надзор, составили акты на скрытые работы.
- Заказали обмерочную Ведомость БТИ.
- Составили комиссию на ввод в эксплуатацию + согласовали акты ввода с комиссией.
- Получили Решение исполкома на регистрацию изменений после перепланировки в БТИ.
- Зарегистрировали в БТИ Решение исполкома, получили новые правоустанавливающие документы - новый технический паспорт + Свидетельство о гос. Регистрации
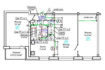
ПРОЕКТ №2
- Получили Разрешение Администрации Советского района г. Минска на перепланировку (переустройство).
- Разработали архитектурный проект перепланировки (Раздел АС -Архитектурно-строительные работы, ОВ - Отопление и Вентиляция воздуха).
- Согласовали Архитектурно-строительный проект с Зам. Начальника управления архитектуры и строительства Администрации Советского района г. Минска, а также Председателем Товарищества Собственников.
- Выполнили стройработы по устройству гидроизоляции пола вновь образованного санузла квартиры. (имеем Сертификаты Соответствия).
- Выполнили строй работы по замене радиаторов отопления (Предоставили аттестаты соответствия).
- Осуществили технический надзор как ИП Шусталик Р.А., составили акты на скрытые работы. (имееем аттестаты Соответствия МАиСт РБ)
- Заказали обмерочную Ведомость БРТИ.
- Составили комиссию на ввод в эксплуатацию + согласовали акты ввода с комиссией.
- Получили Решение исполкома на регистрацию изменений после перепланировки в БРТИ.
- Зарегистрировали в БРТИ Решение исполкома, получили новые правоустанавливающие документы - новый технический паспорт + Свидетельство о гос. Регистрации.
Информация
Год постройки
1972
Серия
М-335
Тип дома
панельный
Планировка
улучшенный проект
Район
Советский район
Микрорайон
Куйбышева
Этажность
9
Метро
Площадь Победы
№ дома
46
Улица
ул. Куйбышева
Город
г. Минск
Координаты
53.924564, 27.581729
Похожие проекты
Выполнить аналогичное согласование перепланировки , а также технический надзор можем и Вам. Достаточно оставить заявку "Заказать звонок" либо позвонить нам по телефонам +375 (29) 311-86-94 и +375 (33) 311-86-94
Адекватные цены, сертифицированные и опытные специалисты помогут выбрать Вам оптимальное решение.




