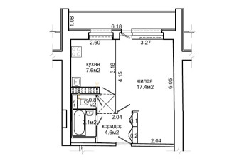
Выполнили проект перепланировки квартиры по ул. Маяковского д. 14 г. Минск
Сегодня: 0, за все время: 105
г. Минск
Ленинский
11
индвидуальный
Ковальская Слобода
17 минут пешком
Выполнили перепланировку квартиры по улице Маяковского д. 14 в Минске представляет собой следующие решения:
- Получили Решение исполкома Ленинского района на перепланировку (переустройство).
- Разработали Строительный проект (Разделы: АС, ОПЗ, ОВ, Задание на проект).
- Согласовали проект с Главным Инженером КУП ЖЭУ Ленинского района г. Минска, с Начальником Управления Архитектуры и Строительства Администрации Ленинского района г. Минска.
- Выполнили строй работы по демонтажу, гидроизоляции пола санузла, замене и переносу радиаторов отопления (предоставили к договору подряда соответствующие Аттестаты и Сертификаты качества МАиСт РБ).
- Заключили договор на Технический Надзор от ИП Шусталик Р.А. (предоставили к договору подряда соответствующие Аттестаты качества МаиСт РБ).
- Заказали Обмерочную Ведомость в РУП "Минское городское агентство по государственной регистрации и земельному кадастру".
- Согласовавали Обмерочную Ведомость с Главным Инженером КУП "ЖЭУ Ленинского района г. Минска".
- Подали весь "пакет документов" в Службу Одно Окно Администрации Ленинского района на вынесение Решения "о регистрации перепланировки (переустройства).
- Через 3-4 недели получили Решение исполкома "о регистрации перепланировки (переустройства) и подали данное Решение в РУП "МГАпоГРиЗК" на регистрацию.
- Через 5 дней получили новые правоустанавливающие документы в РУП "МГАпоГРиЗК":
- - новый Технический паспорт;
- - новое Свидетельство о государственной регистрации.
- Вручили Заказчику все оригиналы докуменетов с "доставкой на дом".
Информация
Год постройки
1978
Серия
индвидуальный
Тип дома
кирпичный
Планировка
чешский проект
Район
Ленинский район
Микрорайон
Маяковского
Этажность
11
Метро
Ковальская Слобода
№ дома
14
Улица
ул. Маяковского
Город
г. Минск
Координаты
53.881441, 27.567320
Похожие проекты
Выполнить аналогичное согласование перепланировки , а также технический надзор можем и Вам. Достаточно оставить заявку "Заказать звонок" либо позвонить нам по телефонам +375 (29) 311-86-94 и +375 (33) 311-86-94
Адекватные цены, сертифицированные и опытные специалисты помогут выбрать Вам оптимальное решение.


