Выполнили перепланировку квартиры по ул. Небесная д. 11 д. Копище
Сегодня: 0, за все время: 130
д. Копище
Минский
23
индвидуальный
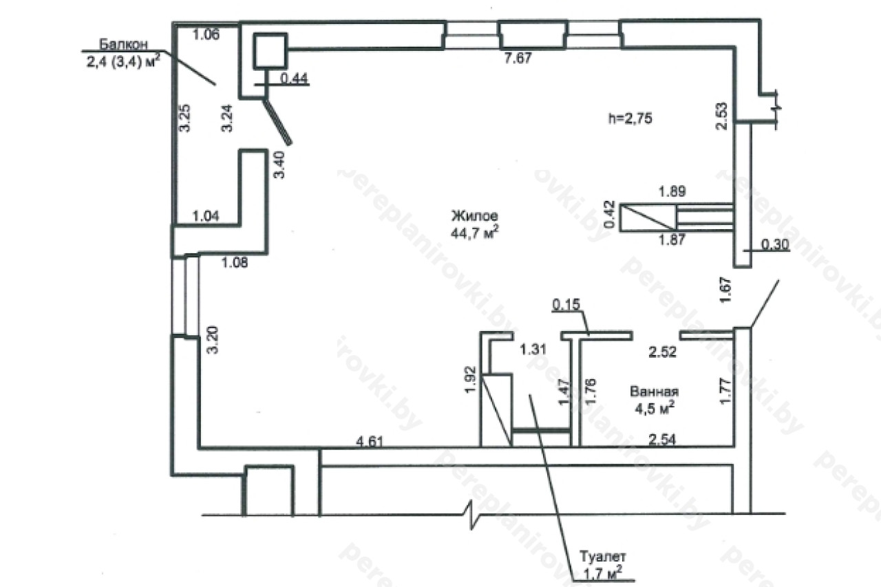
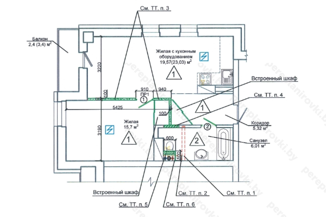
Перепланировка квартиры по улице Небесная д. 11 в Копище Минской области представляет собой следующие решения:
- Получили Разрешение Администрации Минского района д. Копище на перепланировку (переустройство).
- Разработали архитектурный проект перепланировки (Раздел АС -Архитектурно-строительные решения).
- Согласовали Архитектурно-строительный проект с Начальником управления архитектуры и строительства Администрации Минского района г. д. Копище а, а также Председателем ТС.
- Выполнили стройработы по устройству гидроизоляции пола вновь образованном санузле.
- Осуществили технический надзор, составили акты на скрытые работы.
- Заказали обмерочную Ведомость БТИ Минского района.
- Составили комиссию на ввод в эксплуатацию + согласовали акты ввода с комиссией.
- Получили Решение исполкома Минского района на регистрацию изменений после перепланировки в БТИ Минского района.
- Зарегистрировали в БТИ Решение исполкома, получили новые правоустанавливающие документы - новый технический паспорт + Свидетельство о гос. Регистрации.
Информация
Год постройки
2020
Квартал
Сосновый квартал
Серия
индвидуальный
Область
Минская область
Тип дома
монолитный
Жилой комплекс
ЖК Новая Боровая
Планировка
свободная
Этажность
23
Сельсовет
Боровлянский с/с
№ дома
11
Улица
ул. Небесная
Город
д. Копище
Стиль
постмодернизм
Координаты
53.956783, 27.661787
Похожие проекты
Выполнить аналогичное согласование перепланировки , а также технический надзор можем и Вам. Достаточно оставить заявку "Заказать звонок" либо позвонить нам по телефонам +375 (29) 311-86-94 и +375 (33) 311-86-94
Адекватные цены, сертифицированные и опытные специалисты помогут выбрать Вам оптимальное решение.
Адрес: 223053, Минский р-н, д. Боровая, 7
Телефоны: +375 29 300 00 00
Сайт: www.a-100development.by
Почта: a-100@a-100.by



