Выполнили согласование самовольной перепланировки квартиры по ул. Высоцкого д. 1 г. Минск
Сегодня: 0, за все время: 142
г. Минск
Первомайский
16
М-464-М
Борисовский тракт
12 минут пешком
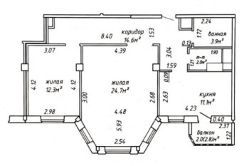
Узаконивание перепланировки квартиры по улице Высоцкого д.1 в Минске представляет собой следующие решения:
- Заказали Обмерочную Ведомость БТИ, согласовав её с ТС Первомайского района.
- Выполнили проект – Техническое Заключение о состоянии несущих конструкций в 2-х экземплярах, (один собственнику, а второй в Администрацию Первомайского района г. Минска).
- Подали документы в Товарищество собственников для привлечения собственника квартиры к административной ответственности в виде штрафа. Оплатили штраф.
- Подали весь «пакет документов» в Службу Одно Окно для вынесения Решения исполкома Первомайского района «о регистрации самовольной перепланировки в БТИ…»
- Зарегистрировали в БТИ Решение исполкома на регистрацию самовольной перепланировки, заказали новые правоустанавливающие документы, включающие :
- - Новый технический паспорт;
- - Новое свидетельство о государственной регистрации БТИ.
Информация
Год постройки
2017
Серия
М-464-М
Проект
М-464-М-16-101
Тип дома
панельный
Жилой комплекс
ЖК Магистр
Планировка
новостройка
Район
Первомайский район
Микрорайон
Уручье
Этажность
16
Метро
Восток
№ дома
1
Улица
ул. Академика Высоцкого
Город
г. Минск
Координаты
53.930062, 27.674085
Похожие проекты
Выполнить аналогичное узаконивание самовольной перепланировки, а также технический надзор можем и Вам. Достаточно оставить заявку "Заказать звонок" либо позвонить нам по телефонам +375 (29) 311-86-94 и +375 (33) 311-86-94
Адекватные цены, сертифицированные и опытные специалисты помогут выбрать Вам оптимальное решение.


