Выполнили проект перепланировки квартиры по ул. Бурдейного д. 37 г. Минск
Сегодня: 0, за все время: 27
г. Минск
Фрунзенский
9
КВ
Каменная горка
6 минут пешком
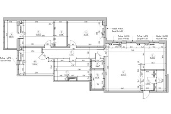
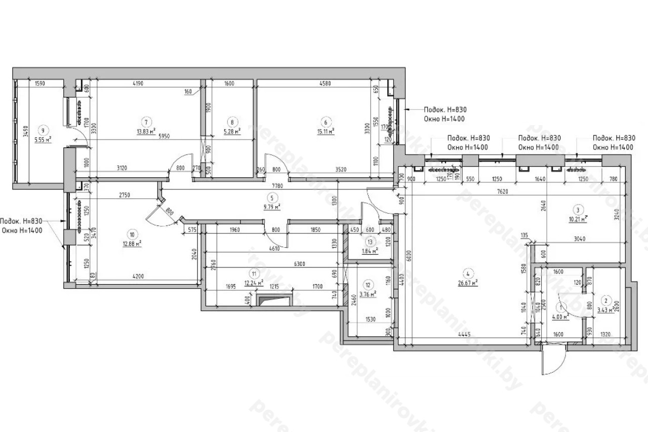
Выполнили согласование самовольной перепланировки квартиры по улице Бурдейного д. 37 в Минске представляет собой следующие решения:
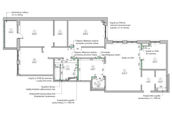
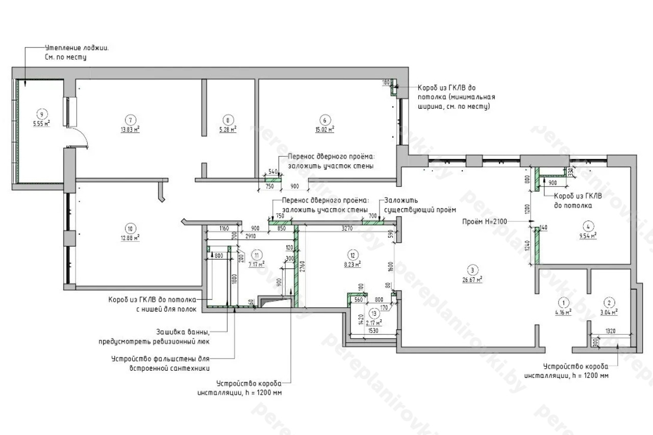
- Выполнили конструкторские расчёты на усиление существующих проёмов между залом 26,67м2 и коридором 9,79м2 шириной 1000 мм, между залом и вновь образованным кабинетом 8,23м2 шириной 1560мм, а также прпоёма в стеновой панели толщиной 160мм в пределах длинного коридора 9,79м2 шириной 1360мм.
- Выполнили строй работы по усилению рамой опорной металлической РОМ1 существующего проёма между залом 26,67м2 и коридором 9,79м2, а также по усилению рамой опорной металлической РОМ2 существующего проёма между залом и вновь образованным кабинетом 8,23м2 шириной 1560мм с усилением получившегося простенка в 280 мм, а также проёма шириной 1360 мм рамой опорной металлической РОМ3 в стеновой панели в пределах длинного коридора 9,79 м2 (усиление рамами комбинированными: ригель из швеллеров, а стойки из уголков, чтобы минимально торчали после отделки) .
- Убрали и вывезли строительный мусор на полигон "Тростенецкий" с предоставлением Заказчику Договора (нужен в исполком).
- Выполнили строй работы по демонтажу "тяжёлых кирпичных" перегородок с уборкой и вывозом мусора в наши мешки на полигон Тростенецкий.
- Выполнили строй работы по монтажу "лёгких" не несущих перегородок из болоков ячеистого бетона в жилых комнатах, а также перегородок из блоков из керамзитобетона пазогребневых в санузлах и кухне (где находяться влажные процессы). При этом перегородки возвели на перекрытие, для этого в существующей стяжке алмазной резкой устроили штрабы.
- Выполнили сантехнические работы.
- Заказали обмерочную Ведомость в МГАпоГРиЗК.
- Согласовали Ведомость МГАпоГРиЗК у Главного инженера ЖЭУ Фрунзенского района г. Минска.
- Изготовили положительное Техническое Заключение о состоянии несущих конструкций, приложили фото рам опорных металлических, фото новых перегородок.
- Привлекли собственника квартиры к административной ответственности в виде штрафа в ЖЭУ Фрунзенского района г. Минска.
- Оплатили штраф в 0,5 Б.В.
- Составили и согласовали акт выполненных работ по самовольной перепланировке у Главного инженера ЖЭУ Фрунзенского района г. Минска.
- Подали "пакет" документов в службу Одно Окно Администрации Фрунзенского района г. Минска на вынесение решения о "регистрации самовольной реконструкции".
- Получили положительную Выписку из Решения администрации Фрунзенского района г. Минска.
- Зарегистрировали Выписку из Решения исполкома в МГАпоГРиЗК и заказали новые правоустанавливающие документы.
- Получили в МГАпоГРиЗК новый Тех. паспорт на квартиру + Новое свидетельство о гос.
Информация
Год постройки
2002
Серия
КВ
Тип дома
кирпичный
Планировка
новостройка
Район
Фрунзенский район
Микрорайон
Запад
Этажность
9
Метро
Каменная горка
№ дома
37
Улица
ул. Бурдейного
Город
г. Минск
Координаты
53.904438, 27.441421
Похожие проекты
Выполнить аналогичное узаконивание самовольной перепланировки, а также технический надзор можем и Вам. Достаточно оставить заявку "Заказать звонок" либо позвонить нам по телефонам +375 (29) 311-86-94 и +375 (33) 311-86-94
Адекватные цены, сертифицированные и опытные специалисты помогут выбрать Вам оптимальное решение.








