Выполнили согласование самовольной перепланировки квартиры по ул. Брилевская д. 37 г. Минск
Сегодня: 0, за все время: 119
г. Минск
Октябрьский
25
индвидуальный
Аэродромная
13 минут пешком
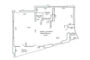
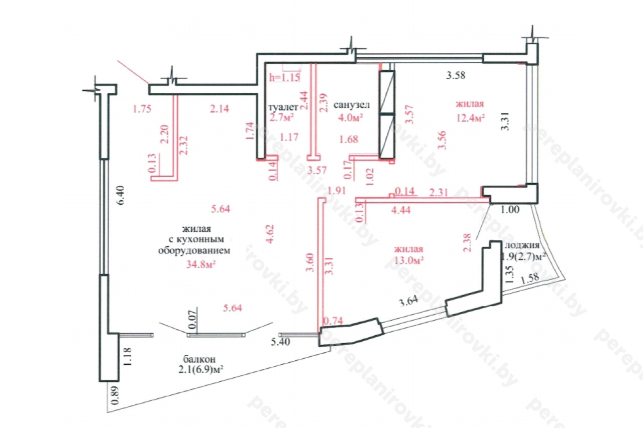
Выполнили согласование перепланировки квартиры по улице Брилевская д. 37 в Минске представляет собой следующие решения:
- Заказали Обмерочную Ведомость в РУП "Минское Городское Агентство по Государственной Регистрации и Земельному Кадастру". Согласовали Ведомость в ТС, "Дубай Проперти", Начальником Управления Архитектуры и строительства Администрации Октябрьского района г. Минска.
- Привлекли собственника квартиры к административной ответственности в виде штрафа 0.5 БВ.
- Выполнили Техническое Заключение о состоянии строительных конструкций. (включая расчёты на замену радиаторов отопления + тепловой расчёт на лоджии, так как часть стены при перепланировке было демонтировано).
- Подали "пакет документов" в Службу "Одно Окно" Администрации Октябрьского района для получения Решения исполкома на регистрацию самовольной перепланировки.
- Регистрация Решения исполкома на самоволку в РУП "Минское Городское Агентство по Государственной Регистрации и Земельному Кадастру". Получение нового Технического паспорта + Свидетельства о гос. Регистрации в РУП "Минское Городское Агентство по Государственной Регистрации и Земельному Кадастру".
Информация
Год постройки
2021
Квартал
Азия
Серия
индвидуальный
Тип дома
монолитный
Жилой комплекс
ЖК Minsk World
Планировка
свободная
Район
Октябрьский район
Микрорайон
Минск Мир
Этажность
25
Метро
Аэродромная
№ дома
37
Улица
ул. Брилевская
Город
г. Минск
Координаты
53.868520, 27.527057
Дом
Мумбаи
Похожие проекты
Выполнить аналогичное узаконивание самовольной перепланировки, а также технический надзор можем и Вам. Достаточно оставить заявку "Заказать звонок" либо позвонить нам по телефонам +375 (29) 311-86-94 и +375 (33) 311-86-94
Адекватные цены, сертифицированные и опытные специалисты помогут выбрать Вам оптимальное решение.
Dana Holdings
«Дана Холдингз» («Dana Holdings») – международная строительная компания. В состав группы входят в том числе ИООО «Дана Астра», ИООО «ЗомексИнвестмент» и СООО «Белинте-Роба», которые осуществляют деятельность в Республике Беларусь. Компания осуществля... Подробнее...Год основания: 2007
Адрес: 220114, г. Минск, ул. П. Мстиславца, д.5, помещение 207, комната 2
Телефоны: +375 17 388-17-19
Сайт: https://bir.by
Почта: bir@bir.by





