Выполнили согласование самовольной перепланировки квартиры по ул. Макаёнка 12К г. Минск
Сегодня: 0, за все время: 103
г. Минск
Первомайский
25
индвидуальный
Московская
5 минут пешком
Узаконивание перепланировки квартиры по улице Макаёнка 12К в Минске представляет собой следующие решения:
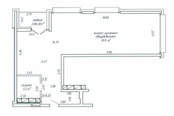
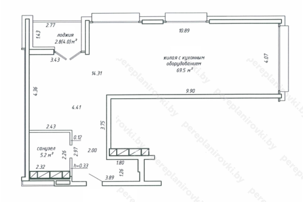
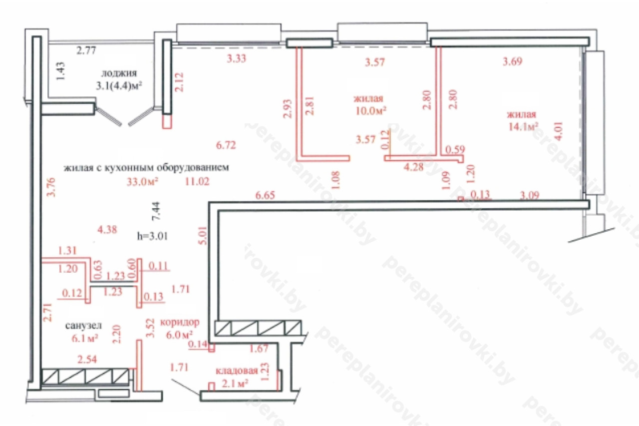
ПРОЕКТ №1
- Заказали Обмерочную Ведомость БТИ, согласовав её с ТС Первомайского района.
- Выполнили проект – Техническое Заключение о состоянии несущих конструкций в 2-х экземплярах, (один собственнику, а второй в Администрацию Первомайского района г. Минска).
- Подали документы в Товарищество собственников для привлечения собственника квартиры к административной ответственности в виде штрафа. Оплатили штраф.
- Подали весь «пакет документов» в Службу Одно Окно для вынесения Решения исполкома Первомайского района «о регистрации самовольной перепланировки в РУП "МГАпоГРиЗК»
- Зарегистрировали в РУП "МГАпоГРиЗК" Решение исполкома на регистрацию самовольной перепланировки, заказали новые правоустанавливающие документы, включающие :
- - Новый технический паспорт;
- - Новое свидетельство о государственной регистрации РУП "МГАпоГРиЗК".
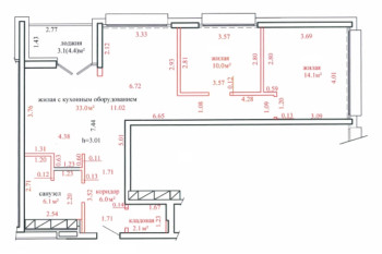
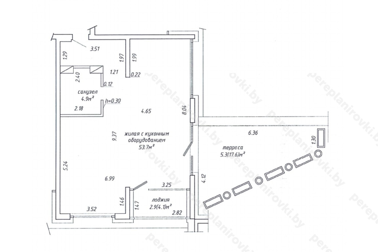
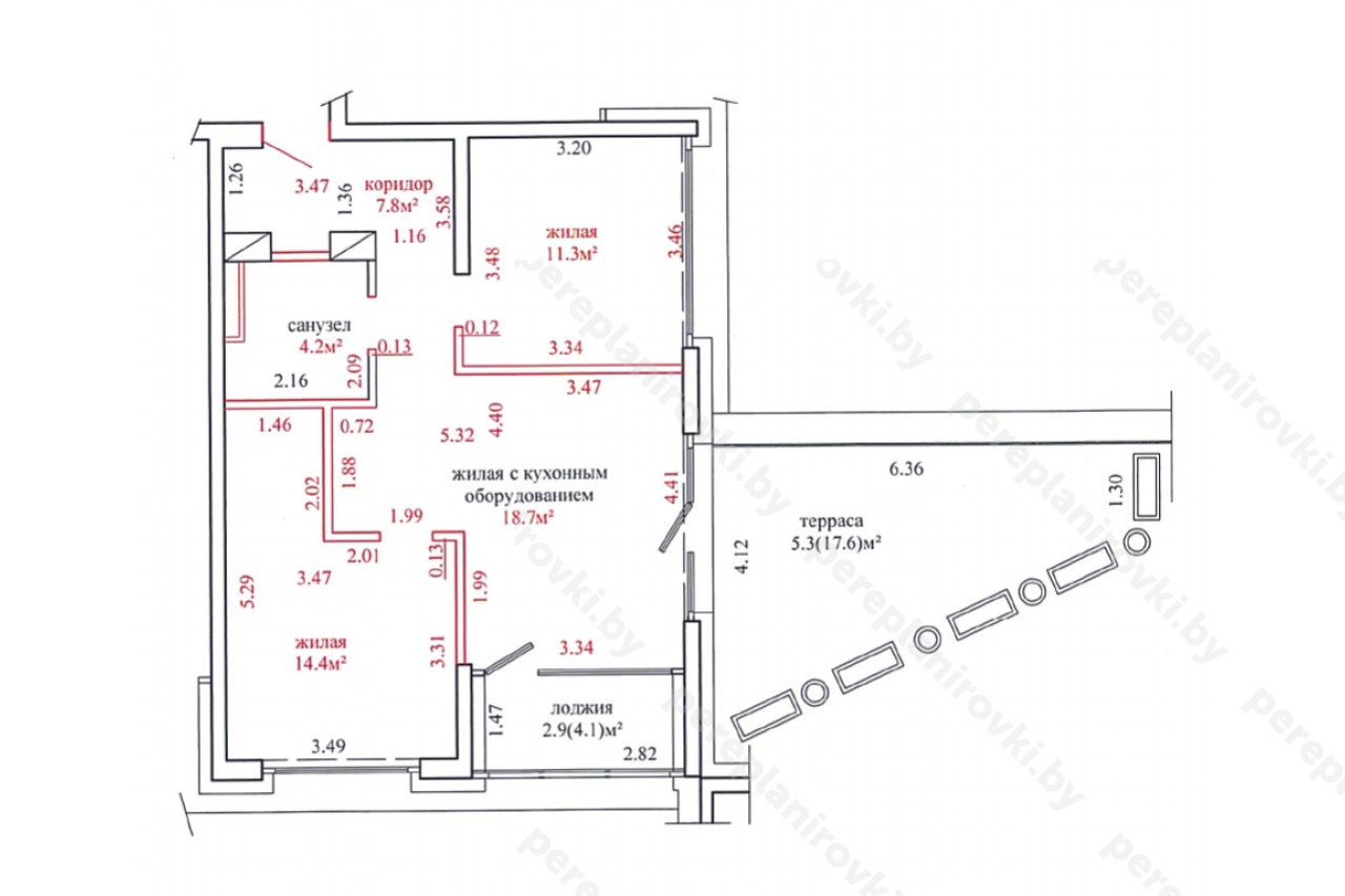
ПРОЕКТ №2
- Заказали Обмерочную Ведомость в РУП "Минское городское агентство по государственной регистрации и земельному кадастру". Согласовали Ведомость в Товариществе Собственников "Дубай Проперти", Начальником Управления Архитектуры и строительства Администрации Октябрьского района г. Минска.
- Привлекли собственника квартиры к административной ответственности в виде штрафа 0.5 БВ (20 рублей).
- Выполнили Положительное Техническое Заключение о состоянии строительных конструкций, включая Приложение на пересчёт отопления (замена радиаторов отопления).
- Согласовали Техническое заключение с Главным Инженером Товарищества Собственников "Дубай Проперти".
- Подали "пакет документов" в Службу "Одно Окно" Администрации Первомайского района для получения Решения исполкома на регистрацию самовольной перепланировки.
- Регистрация Решения исполкома на самоволку в РУП "Минское городское агентство по государственной регистрации и земельному кадастру". Получил новые документы
- 1. Технический паспорт.
- 2. Свидетельства о гос. Регистрации.
Информация
Год постройки
2019
Серия
индвидуальный
Тип дома
монолитный
Жилой комплекс
ЖК Парк Челюскинцев
Планировка
свободная
Район
Первомайский район
Микрорайон
Парниковая
Этажность
25
Метро
Московская
№ дома
12К
Улица
ул. Макаёнка
Город
г. Минск
Координаты
53.922379, 27.624129
Похожие проекты
Выполнить аналогичное узаконивание самовольной перепланировки, а также технический надзор можем и Вам. Достаточно оставить заявку "Заказать звонок" либо позвонить нам по телефонам +375 (29) 311-86-94 и +375 (33) 311-86-94
Адекватные цены, сертифицированные и опытные специалисты помогут выбрать Вам оптимальное решение.
Dana Holdings
«Дана Холдингз» («Dana Holdings») – международная строительная компания. В состав группы входят в том числе ИООО «Дана Астра», ИООО «ЗомексИнвестмент» и СООО «Белинте-Роба», которые осуществляют деятельность в Республике Беларусь. Компания осуществля... Подробнее...Год основания: 2007
Адрес: 220114, г. Минск, ул. П. Мстиславца, д.5, помещение 207, комната 2
Телефоны: +375 17 388-17-19
Сайт: https://bir.by
Почта: bir@bir.by







