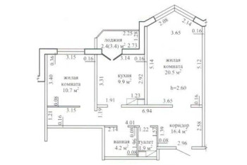
Выполнили перепланировку квартиры по ул. Елены Стемпковской д. 24 г. Солигорск
Сегодня: 0, за все время: 74
г. Солигорск
9
Б2.111-1-464Д
Выполненная перепланировка квартиры по улице Елены Стемпковской д. 24 представляет собой следующие решения:
- Заказали обмерочную Ведомость в МОАпоГРиЗК.
- Согласовали Ведомость МОАпоГРиЗК у Главного Инженера ЖЭС г. Солигорска.
- Изготовили Техническое Заключение о состоянии строительных конструкций.
- Привлекли собственника квартиры к административной ответственности в виде штрафа в ЖЭС-е г. Солигорске.
- Оплатили штраф в 0,5 Б.В.
- Составили и согласовали акт выполненных работ по самовольной перепланировке у Главного инженера ЖЭС г. Солигорска.
- Подали "пакет" документов в службу Одно Окно Администрации г. Солигорска на вынесение решения о "регистрации самовольной реконструкции".
- Получили положительную Выписку из Решения администрации г. Солигорска.
- Зарегистрировали Выписку из Решения исполкома в МОАпоГРиЗК и заказали новые правоустанавливающие документы.
- Получили в МОАпоГРиЗК новый Тех. паспорт на квартиру + Новое свидетельство о гос. Регистрации.
- Передали на офисе готовые все готовые документы Заказчику.
Информация
Год постройки
2024
Серия
Б2.111-1-464Д
Область
Минская область
Тип дома
панельный
Планировка
новостройка
Этажность
9
№ дома
24
Улица
ул. Елены Стемпковской
Город
г. Солигорск
Координаты
52.788878, 27.487361
Похожие проекты


