Выполнили согласование самовольной перепланировки квартиры по ул. Филатова д. 6 г. Минск
Сегодня: 0, за все время: 130
г. Минск
Заводской
5
1-464
Партизанская
4 минут пешком
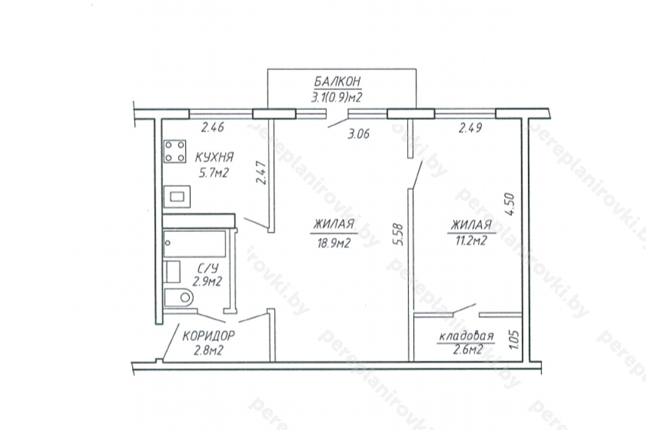
Согласование самовольной перепланировки квартиры по улице Филатова д. 6 в Минске представляет собой следующие решения:
- Выполнили конструкторские расчёты на усиление существующих проёмов между жилой комнатой и коридором, между жилой и жилой комнатой, а также между кухней и жилой комнатой.
- Выполнили строй работы по усилению рамой опорной металлической РОМ1 существующего проёма между жилой и жилой, а также по усилению рамой опорной металлической РОМ2 существующего проёма между жилой и коридором с усилением получившегося простенка в 270 мм, а также проёма шириной 1150 мм между кухней и жилой комнатой (усиление скрытое и после отделки не видно).
- Убрали и вывезли строительный мусор на полигон "Тростенецкий" с предоставлением Заказчику Договора (нужен в исполком).
- Заказали обмерочную Ведомость в МГАпоГРиЗК.
- Согласовали Ведомость МГАпоГРиЗК у Главного инженера ЖЭУ Заводского района г. Минска.
- Изготовили положительное Техническое Заключение о состоянии несущих конструкций, приложили фото рам опорных металлических.
- Привлекли собственника квартиры к административной ответственности в виде штрафа в ЖЭУ Заводского района г. Минска.
- Оплатили штраф в 0,5 Б.В.
- Составили и согласовали акт выполненных работ по самовольной перепланировке у Главного инженера ЖЭУ Заволского района г. Минска.
- Подали "пакет" документов в службу Одно Окно Администрации Заводского района г. Минска на вынесение решения о "регистрации самовольной реконструкции".
- Получили положительную Выписку из Решения администрации Заводского района г. Минска.
- Зарегистрировали Выписку из Решения исполкома в МГАпоГРиЗК и заказали новые правоустанавливающие документы.
- Получили в МГАпоГРиЗК новый Тех. паспорт на квартиру + Новое свидетельство о гос. Регистрации.
Информация
Год постройки
1961
Серия
1-464
Тип дома
панельный
Планировка
хрущевка
Район
Заводской район
Этажность
5
Метро
Партизанская
№ дома
6
Улица
ул. Филатова
Город
г. Минск
Координаты
53.872295, 27.632241
Похожие проекты
Выполнить аналогичное узаконивание самовольной перепланировки, а также технический надзор можем и Вам. Достаточно оставить заявку "Заказать звонок" либо позвонить нам по телефонам +375 (29) 311-86-94 и +375 (33) 311-86-94
Адекватные цены, сертифицированные и опытные специалисты помогут выбрать Вам оптимальное решение.







