Выполнили согласование самовольной перепланировки квартиры по пр-д. Энергетический д. 2 г. Минск
Сегодня: 0, за все время: 105
г. Минск
Заводской
3
БМ-2
Партизанская
11 минут пешком
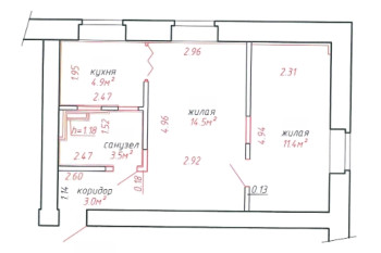
Узаконивание перепланировки квартиры по проезд Энергетический д. 2 в Минске представляет собой следующие решения:
- Заказали Обмерочную Ведомость БТИ. Согласовали её в ТС, Начальником Управления Архитектуры и строительства Администрации Заводского района г. Минска.
- Привлекли собственника квартиры к административной ответственности в виде штрафа 0.5 БВ.
- Выполнили Техническое Заключение о состоянии строительных конструкций.
- Подали "пакет документов" в Службу "Одно Окно" Администрации Заводского района для получения Решения исполкома на регистрацию самовольной перепланировки.
- Регистрация Решения исполкома на самоволку в БТИ. Получение нового Технического паспорта + Свидетельства о гос. Регистрации БТИ.
Информация
Год постройки
1959
Серия
БМ-2
Проект
БМ-2-3, БМ-2-4
Тип дома
кирпичный
Планировка
хрущевка
Район
Заводской район
Микрорайон
Народная
Этажность
3
Метро
Партизанская
№ дома
2
Улица
пр-д. Энергетический
Город
г. Минск
Координаты
53.866731, 27.625863
Похожие проекты


