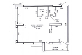
Выполнили согласование самовольной перепланировки квартиры по ул. Леонида Щемелёва д. 10 г. Минск
Сегодня: 0, за все время: 123
г. Минск
Октябрьский
25
индвидуальный
Аэродромная
10 минут пешком
Согласование самовольной перепланировки квартиры по улице Леонида Щемелёва д. 10 в Минске представляет собой следующие решения:
- Заказали Обмерочную Ведомость в РУП "Минское городское агентство по государственной регистрации и земельному кадастру". Согласовали Ведомость в Товариществе Собственников "Дубай Проперти", Начальником Управления Архитектуры и строительства Администрации Октябрьского района г. Минска.
- Привлекли собственника квартиры к административной ответственности в виде штрафа 0.5 БВ (20 рублей).
- Выполнили Положительное Техническое Заключение о состоянии строительных конструкций, включая расчёт на замену радиаторов отопления.
- Согласовали Техническое заключение с Главным Инженером Товарищества Собственников "Дубай Проперти".
- Подали "пакет документов" в Службу "Одно Окно" Администрации Октябрьского района для получения Решения исполкома на регистрацию самовольной перепланировки.
- Регистрация Решения исполкома на самоволку в РУП "Минское городское агентство по государственной регистрации и земельному кадастру". Получил новые документы:
- 1. Технический паспорт.
- 2. Свидетельства о гос. Регистрации.
Информация
Год постройки
2024
Квартал
Южная Америка
Серия
индвидуальный
Тип дома
монолитный
Жилой комплекс
ЖК Minsk World
Планировка
свободная
Район
Октябрьский район
Этажность
25
Метро
Аэродромная
№ дома
10
Улица
ул. Леонида Щемелёва
Город
г. Минск
Координаты
53.864995, 27.557348
Дом
Сан-Паулу
Похожие проекты
Выполнить аналогичное узаконивание самовольной перепланировки, а также технический надзор можем и Вам. Достаточно оставить заявку "Заказать звонок" либо позвонить нам по телефонам +375 (29) 311-86-94 и +375 (33) 311-86-94
Адекватные цены, сертифицированные и опытные специалисты помогут выбрать Вам оптимальное решение.
Dana Holdings
«Дана Холдингз» («Dana Holdings») – международная строительная компания. В состав группы входят в том числе ИООО «Дана Астра», ИООО «ЗомексИнвестмент» и СООО «Белинте-Роба», которые осуществляют деятельность в Республике Беларусь. Компания осуществля... Подробнее...Год основания: 2007
Адрес: 220114, г. Минск, ул. П. Мстиславца, д.5, помещение 207, комната 2
Телефоны: +375 17 388-17-19
Сайт: https://bir.by
Почта: bir@bir.by



