Выполнили согласование самовольной перепланировки квартиры по ул. Пилотная д. 8 д. Копище
Сегодня: 0, за все время: 157
д. Копище
9
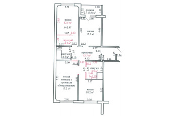
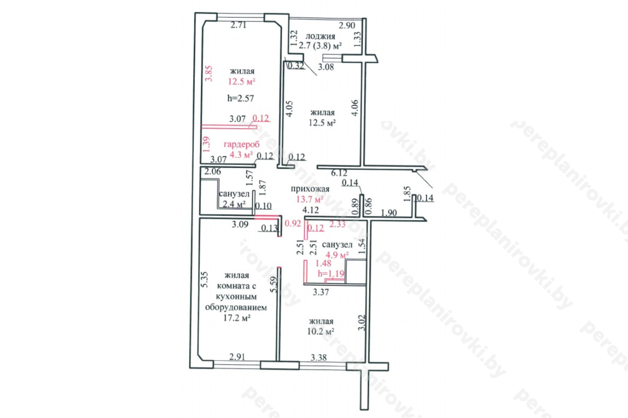
Выполнили согласование перепланировки квартиры по улице Пилотная д. 8 д. Копище представляет собой следующие решения:
- Выполнили конструкторские расчёты на усиление устроенного проёма между жилой комнатой и прихожей.
- Выполнили строй работы по усилению рамой опорной металлической РОМ1 устроенного проёма между жилой комнатой и прихожей (Усиление скрытое - после отделки не видно).
- Демонировали не несущую перегородку между санузлом и прихожей.
- Убрали и вывезли строительный мусор на полигон "Тростенецкий" с предоставлением Заказчику Договора (нужен в исполком).
- Заказали обмерочную Ведомость в МОАпоГРиЗК.
- Согласовали Ведомость МОАпоГРиЗК у Председателя Правления Товарищества Собственников «Центральный парк-13» в д. Копище.
- Изготовили Положительное Техническое Заключение о состоянии несущих конструкций, приложили фото рамы опорной металлической РОМ 1.
- Привлекли собственника квартиры к административной ответственности в виде штрафа в Администрации Минского района.
- Оплатили штраф в 0,5 Б.В.
- Составили и согласовали акт выполненных работ по самовольной перепланировке у Председателя Правления Товарищества Собственников «Центральный парк-13» д. Копище.
- Подали "пакет" документов в службу Одно Окно Администрации Минского района на вынесение решения о "регистрации самовольной перепланировки".
- Получили положительную Выписку из Решения администрации Минского района.
- Зарегистрировали Выписку из Решения исполкома в МОАпоГРиЗК и заказали новые правоустанавливающие документы.
- Получили в МОАпоГРиЗК новый Тех. паспорт на квартиру + Новое свидетельство о гос. Регистрации.
- Передали на офисе по ул. Тиражная 150-408 все готовые документы Заказчику.
Информация
Год постройки
2024
Квартал
Жасминовый
Тип дома
панельный
Жилой комплекс
ЖК Новая Боровая
Планировка
новостройка
Район
Минский район
Этажность
9
№ дома
8
Улица
ул. Пилотная
Город
д. Копище
Координаты
53.960036, 27.657178
Похожие проекты
Выполнить аналогичное узаконивание самовольной перепланировки, а также технический надзор можем и Вам. Достаточно оставить заявку "Заказать звонок" либо позвонить нам по телефонам +375 (29) 311-86-94 и +375 (33) 311-86-94
Адекватные цены, сертифицированные и опытные специалисты помогут выбрать Вам оптимальное решение.
Адрес: 223053, Минский р-н, д. Боровая, 7
Телефоны: +375 29 300 00 00
Сайт: www.a-100development.by
Почта: a-100@a-100.by









