Выполнили согласование самовольной перепланировки квартиры по ул. Пашкевич д. 5 г. Минск
Сегодня: 0, за все время: 96
г. Минск
Центральный
6
индвидуальный
Площадь Победы
14 минут пешком
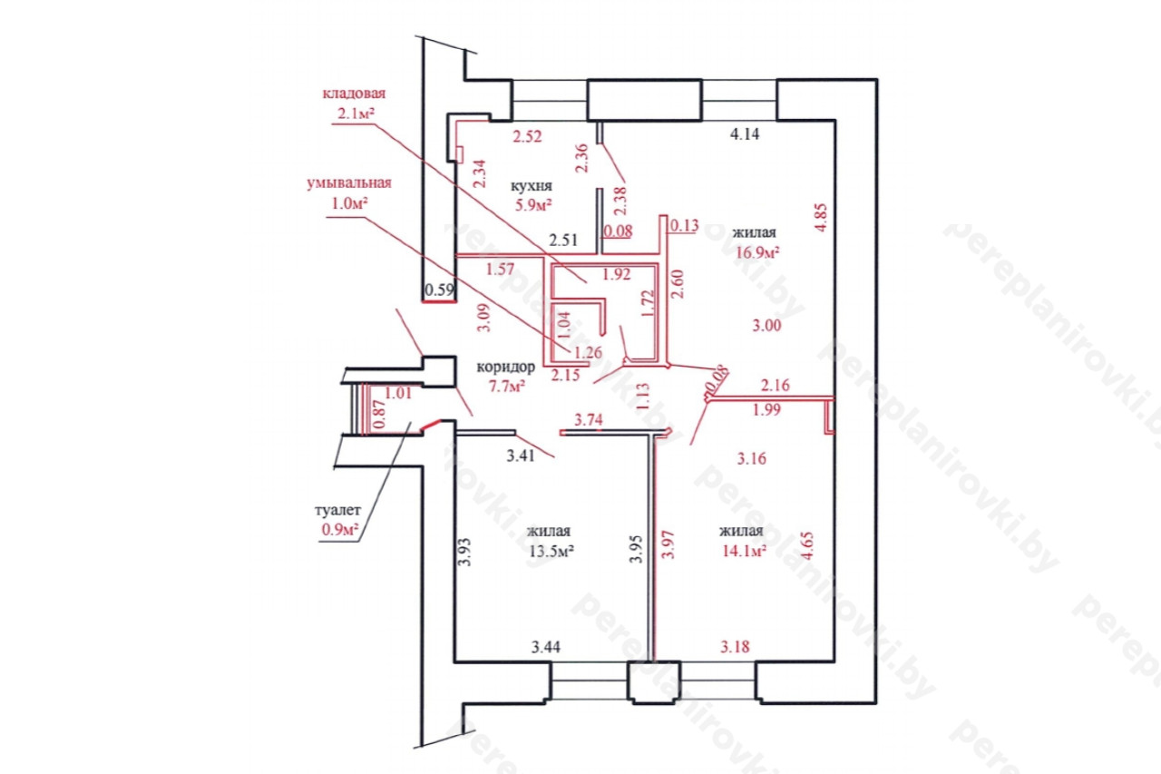
Согласование самовольной перепланировки квартиры по улице Пашкевич д. 5 в Минске представляет собой следующие решения:
- Заказали Обмерочную Ведомость в Минском городском агентстве по государственной регистрации и земельному кадастру, согласовали Ведомость с Главным Инженером ЖЭУ Центрального района.
- Выполнили проект – Техническое Заключение о состоянии строительных конструкций в 2-х экземплярах (один экземпляр собственнику, а второй в Администрацию Центрального района г. Минска.
- Подали документы в исполком в Отдел городского хозяйства для привлечения собственника квартиры к административной ответственности в виде штрафа. Оплатили штраф в сумме 0,5 БВ.
- Получили в КУП ЖЭУ Центрального района Акт описания всей перепланировки (переустройства) - устройство гардеробной на месте кухни, объединение санузла и увеличение его за счёт жилой на 25%.
- Подали весь «пакет документов» в Службу Одно Окно для вынесения Решения исполкома Центрального района «о регистрации самовольной перепланировки" в Минском городском агентстве по государственной регистрации и земельному кадастру.
- Зарегистрировали в Минском городском агентстве по государственной регистрации и земельному кадастру Решение исполкома на регистрацию самовольной перепланировки, заказали новые правоустанавливающие документы, включающие :
- - Новый технический паспорт;
- - Новое свидетельство о государственной регистрации МГАпоГРиЗК.
Информация
Год постройки
1963
Серия
индвидуальный
Тип дома
кирпичный
Планировка
сталинка
Район
Центральный район
Этажность
6
Метро
Площадь Победы
№ дома
5
Улица
ул. Пашкевич
Город
г. Минск
Координаты
53.911720, 27.561139
Похожие проекты
Выполнить аналогичное узаконивание самовольной перепланировки, а также технический надзор можем и Вам. Достаточно оставить заявку "Заказать звонок" либо позвонить нам по телефонам +375 (29) 311-86-94 и +375 (33) 311-86-94
Адекватные цены, сертифицированные и опытные специалисты помогут выбрать Вам оптимальное решение.


