Выполнили согласование самовольной перепланировки квартиры по ул. Мельникайте д. 16 г. Минск
Сегодня: 0, за все время: 118
г. Минск
Центральный
10
индвидуальный
Фрунзенская
6 минут пешком
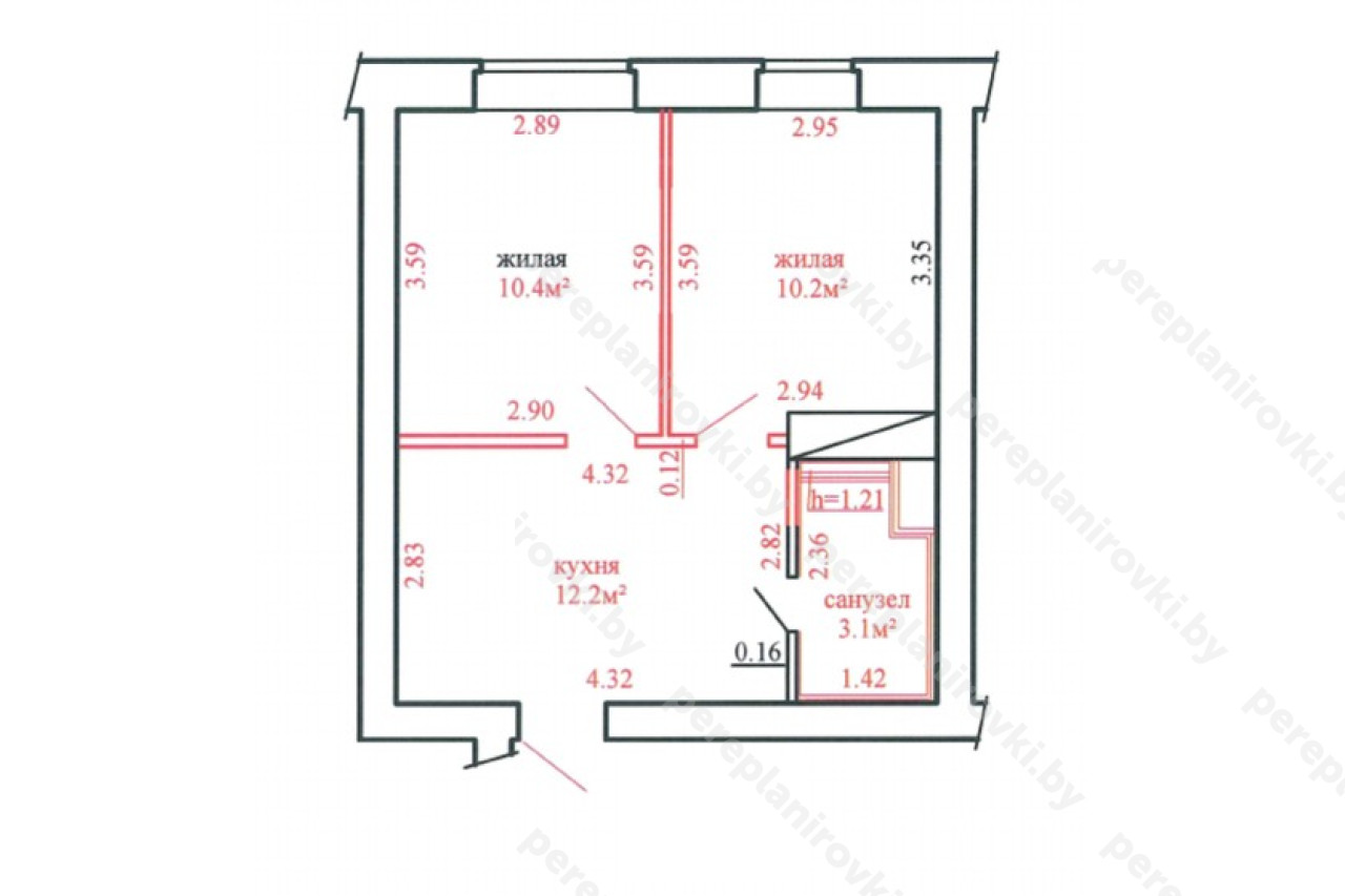
Перепланировка квартиры по улице Мельникайте д. 16 в Минске представляет собой следующие решения:
- Заказали Обмерочную Ведомость в Минском городском агентстве по государственной регистрации и земельному кадастру, согласовали Ведомость с Главным Инженером ЖЭУ Центрального района.
- Выполнили проект – Техническое Заключение о состоянии строительных конструкций в 2-х экземплярах (один экземпляр собственнику, а второй в Администрацию Центрального района г. Минска).
- Подали документы в исполком в Отдел городского хозяйства для привлечения собственника квартиры к административной ответственности в виде штрафа. Оплатили штраф в сумме 0,5 БВ.
- Получили в КУП ЖЭУ Центрального района Акт описания всей перепланировки (переустройства) - переноса кухни в коридор, объединение санузла, устройства жилой комнаты на месте кухни.
- Подали весь «пакет документов» в Службу Одно Окно для вынесения Решения исполкома Центрального района «о регистрации самовольной перепланировки" в Минском городском агентстве по государственной регистрации и земельному кадастру.
- Зарегистрировали в Минском городском агентстве по государственной регистрации и земельному кадастру Решение исполкома на регистрацию самовольной перепланировки, заказали новые правоустанавливающие документы, включающие :
- - Новый технический паспорт;
- - Новое свидетельство о государственной регистрации МГАпоГРиЗК.
Информация
Год постройки
1996
Серия
индвидуальный
Тип дома
кирпичный
Планировка
чешский проект
Район
Центральный район
Микрорайон
Победителей
Этажность
10
Метро
Фрунзенская
№ дома
16
Улица
ул. Мельникайте
Город
г. Минск
Координаты
53.909615, 27.544970
Похожие проекты
Выполнить аналогичное узаконивание самовольной перепланировки, а также технический надзор можем и Вам. Достаточно оставить заявку "Заказать звонок" либо позвонить нам по телефонам +375 (29) 311-86-94 и +375 (33) 311-86-94
Адекватные цены, сертифицированные и опытные специалисты помогут выбрать Вам оптимальное решение.


