Выполнили согласование самовольной перепланировки квартиры по пр-т. Рокоссовского д. 113 г. Минск
Сегодня: 0, за все время: 118
г. Минск
Ленинский
9
1-464А
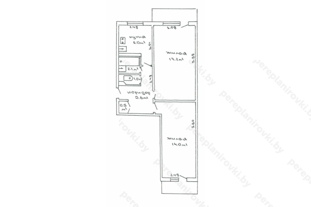
Перепланировка квартиры по проспекту Рокоссовского д. 113 в Минске представляет собой следующие решения:
- Выполнили конструкторские расчёты на усиление металлом проёма между кухней и жилой шириной 1560 мм по металлу.
- Выполнили строй работы по усилению существующего проёма между кухней и жилой шириной 1560 мм Рамой Опорной Металлической скрытого исполнения - после отделки не видно вообще. (5/5 панель).
- Заказали обмерочную Ведомость в МГАпоГРиЗК.
- Согласовали Ведомость МГАпоГРиЗК у Главного инженера ЖЭУ Ленинского района г. Минска.
- Изготовили Техническое Заключение о состоянии несущих конструкций.
- Привлекли собственника квартиры к административной ответственности в виде штрафа в ЖЭУ Ленинского района г. Минска.
- Оплатили штраф в 0,5 Б.В.
- Составили и согласовали акт выполненных работ по самовольной перепланировке у Главного инженера ЖЭУ Ленинского района г. Минска.
- Подали "пакет" документов в службу Одно Окно Администрации Ленинского района г. Минска на вынесение решения о "регистрации самовольной перепланировки".
- Получили положительную Выписку из Решения администрации Ленинского района г. Минска.
- Зарегистрировали Выписку из Решения исполкома в МГАпоГРиЗК и заказали новые правоустанавливающие документы.
- Получили в МГАпоГРиЗК новый Тех. паспорт на квартиру + Новое свидетельство о гос. Регистрации.
- Передали на офисе готовые все готовые документы Заказчику.
Информация
Год постройки
1970
Серия
1-464А
Тип дома
панельный
Планировка
чешский проект
Район
Ленинский район
Микрорайон
Серебрянка
Этажность
9
№ дома
113
Улица
пр-т. Рокоссовского
Город
г. Минск
Координаты
53.858325, 27.615083
Похожие проекты
Выполнить аналогичное узаконивание самовольной перепланировки, а также технический надзор можем и Вам. Достаточно оставить заявку "Заказать звонок" либо позвонить нам по телефонам +375 (29) 311-86-94 и +375 (33) 311-86-94
Адекватные цены, сертифицированные и опытные специалисты помогут выбрать Вам оптимальное решение.








