Выполнили согласование самовольной перепланировки квартиры по пр-т. Независимости д. 147 корп. 2 г. Минск
Сегодня: 0, за все время: 110
г. Минск
Первомайский
9
М-464
Восток
12 минут пешком
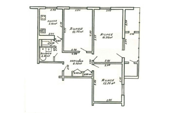
Узаконивание перепланировки квартиры по проспекту Независимости д. 147 к. 2 в Минске представляет собой следующие решения:
- Сделали конструкторский расчёт по усилению существующих проёмов в несущих стенах между кухней и комнатой, коридором и комнатой. Обследовали верхний и нижний этажи на предмет наличия вновь устроенных проёмов в несущих стенах.
- Произвели монтаж рам опорных металлических - РОМ1 и РОМ2 между кухней и комнатой, а также между коридором и комнатой, применяя в качестве ригеля швеллера, а для стоек уголки.
- Заказали обмерочную Ведомость технических характеристик БТИ. Согласовали Ведомость с Зам. Начальника управления Архитектуры и строительства Администрации Первомайского района г. Минска, а также с главным инженером ЖЭУ.
- Подготовили документы для привлечения собственника квартиры к административной ответственности в виде штрафа. Оплатили штраф 0,5 БВ.
- Выполнили проект (Техническое Заключение о состоянии несущих конструкций).
- Подали "пакет " документов в Службу Одно Окно Администрации Первомайского района на вынесение Решения "О регистрации самовольной перепланировки".
- Зарегистрировали Решение исполкома в БТИ и получили новые правоустанавливающие документы, включающие
- - Новый Технический паспорт
- - Новое Свидетельство о государственной регистрации БТИ.
Информация
Год постройки
1974
Серия
М-464
Тип дома
панельный
Планировка
стандартный проект
Район
Первомайский район
Микрорайон
Восток
Этажность
9
Метро
Восток
№ дома
147/2
Улица
пр-т. Независимости
Город
г. Минск
Координаты
53.936121, 27.648051
Похожие проекты
Выполнить аналогичное узаконивание самовольной перепланировки, а также технический надзор можем и Вам. Достаточно оставить заявку "Заказать звонок" либо позвонить нам по телефонам +375 (29) 311-86-94 и +375 (33) 311-86-94
Адекватные цены, сертифицированные и опытные специалисты помогут выбрать Вам оптимальное решение.







